Monster House Plans Logo
Open the door to your dream house! (800)977-5267

Call Monster House Plans to learn more about buying and
customizing house plans in our collection. 6am-6pm Pacific Time
MHP title  
Plan 12-1130 Image
All images are copyrighted by designer. Do not reproduce or publish without permission.
 Plan 12-1130 Features 
Lot Characteristics:
Suited for a back view
Bedrooms & Baths:
Main floor Master
Guest suite
Teen suite/Jack & Jill bath
Kitchen:
Island
Eating bar
Nook / breakfast
Hearth room
Interior Features:
Bonus room
Great room
Main Floor laundry
Media room
Loft / balcony
Open concept floor plan
No formal living/dining
Den / office / computer
Exterior Features:
Covered front porch
Covered rear porch
Wrap-around porch
Breezeway
 
Unique Features:
Vaulted/Volume/Dramatic ceilings
 
Garage:
Oversized garage (3+)
Detached garage
 Plan 12-1130 Detail 
Bedrooms: 6
Full Baths: 5
Half Baths: 1
Levels/Stories: 2
Garage Stalls: 3
Total Sq. Ft.: 4623
Main floor: 2942
Upper floor: 1681
Bonus Room: 705
Garage: 1042
Porches: 2513
Width: 139' 2"
Depth: 102' 2"
Roof Pitch (primary): 8:12
Roof Pitch (secondary): 3:12
Walls: 2"x4"
Ceiling Height (Main): 9'
Ceiling Height (Upper): 9'
 Short Description 
This rustic plan offers plenty for the family and for entertaining loved ones throughout the year. The massive wrap-around covered porch is lined with stone based columns. Once inside the foyer, beautiful stone planters flank a couple of stairs that lead down to the great room. The great room has a fireplace and optional built-ins and French doors that open to a huge covered outdoor living area that features a fireplace. The kitchen has a large angled island bar, pantry, and is open to the hearth room that also has a fireplace and access to a covered grilling porch. The master suite has plenty of room and French doors opening to another covered grilling porch. And the master bath features a corner glass shower and a corner whirlpool tub and a large walk-in closet. There’s also a study/bedroom with an adjacent full bathroom and a craft room/guest room with a full bathroom on the first floor. Upstairs the grand balcony overlooks the great room. Bedrooms 3, 4, and 5 each have walk-in closets and bedroom bedroom3 has a private full bathroom. The large game room/home theater is sure to entertain and has a convenient half bathroom.

Monster House Plans Logo
Open the door to your dream house! (800)977-5267

Call Monster House Plans to learn more about buying and
customizing house plans in our collection. 6am-6pm Pacific Time
MHP title  
 
 
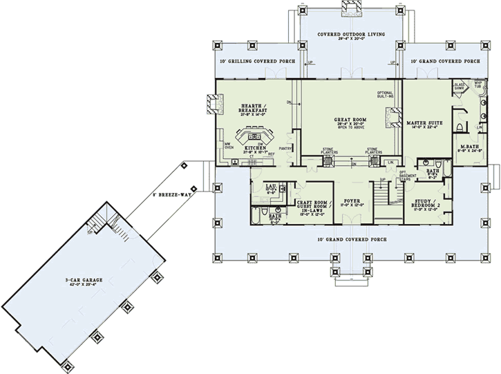
 Main Floor 
Main Floor Plan: 12-1130
 

Monster House Plans Logo
Open the door to your dream house! (800)977-5267

Call Monster House Plans to learn more about buying and
customizing house plans in our collection. 6am-6pm Pacific Time
MHP title  
 
 
 Upper/Second Floor 
Upper/Second Floor Plan:12-1130
 

Monster House Plans Logo
Open the door to your dream house! (800)977-5267

Call Monster House Plans to learn more about buying and
customizing house plans in our collection. 6am-6pm Pacific Time
MHP title  
 
 
 Rear Elevations 
Rear Elevations Plan:12-1130
 

Monster House Plans Logo
Open the door to your dream house! (800)977-5267

Call Monster House Plans to learn more about buying and
customizing house plans in our collection. 6am-6pm Pacific Time
MHP title  
 
 
 Plan Sets 
  5-set   $2150
  This is the basic package that includes what most owner/builders need in paper form.  
 
 
  PDF   (recommended)   $2050
  This is the package you would want to buy if you want your plans right now, want to save the shipping costs, and are willing to have your copies made locally. Changes can also be made with PDF's.  
 
 
  Unlimited Build Construction - PDF   $2750
  This is the package you would want to by if you are a professional builder wanting to build multiple house from this design. this comes with the PDF file AND the unlimited build license.  
 
 
  PDF + 5   $2400
  This is the package you would want to buy if you are not making modifications to the drawings and also want 5 printed sets. This includes a single license to build.  
 
 
  Unlimited Build Construction - CAD   $4100
  This is the package you would want to buy if you are a professional builder wanting to build multiple houses from this design. This comes with the CAD file AND the unlimited build license  
 
 
 
 Foundation Options 
  Basement $ 299
  Daylight basement $ 299
  Crawlspace Standard With Plan
  Slab Standard With Plan
 Other Options 
  Right Reading Reverse - The plan is reversed with all text reading correctly. $299
  Extra Sets - Additional sets are available only with the purchase of a construction set (8 copy, or 5 copy). $80
  Convert to 2" x 6" $299
  Additional Build License $1025

Monster House Plans Logo
Open the door to your dream house! (800)977-5267

Call Monster House Plans to learn more about buying and
customizing house plans in our collection. 6am-6pm Pacific Time
MHP title  


Refund / Exchange Policy:

Plans printed by MonsterHousePlans.com's designers are refundable within 10 business days of purchase under the following conditions:

Plans are in their sealed, original packaging and have not been opened (to be determined by the firm that shipped the original order). Customer will pay a 20% re-stocking fee plus all shipping charges. Reproducibles, CAD Files & PDF's are not refundable under any circumstances due to copyright issues.

Plans ordered from MonsterHousePlans.com may be exchanged within 30 days of purchase under the following conditions:

Upon designer approval, customer may exchange for a plan within the same designer's collection (plan number to have same prefix). Customer will pay 20- 40% of the amount of the original order for re-stocking, plus the difference in cost if exchanging for a higher priced plan. Customer will also be responsible for all shipping charges. Reproducibles, CAD Files & PDF's are not exchangeable under any circumstances due to copyright issues.


Important Stuff

MonsterHousePlans provides home plans for construction purposes but does not oversee the construction. The plan purchaser is responsible for assuring the plan meets local codes and regulations. It is the responsibility of the plan purchaser to obtain any and all structural analysis, engineering and specifications that may be required in the municipality in which it is to be built. Plan purchaser is to verify all lot conditions and measurements before construction. Purchaser is responsible for additional expenses incurred in order to meet local code and engineering requirements.
Customer understands that the following conditions in your specific area may require additional engineering:
1. Wind / hurricane / tornado
2. Seismic / earthquake
3. Heavy snow
4. Flood potential
5. Soil instability
Customer understands that HVAC, Plumbing & Electrical will not be included in plans (other than location of plumbing fixtures and electrical lights, plugs & switches*).

Purchaser agrees that the use of the plan is for the construction of one house only*, and that the plan or any part of it will not be reproduced by any means without the written consent of the copyright owner.

*Unless otherwise noted.