Monster House Plans Logo
Open the door to your dream house! (800)977-5267

Call Monster House Plans to learn more about buying and
customizing house plans in our collection. 6am-6pm Pacific Time
MHP title  
Plan 17-162 Image
All images are copyrighted by designer. Do not reproduce or publish without permission.
 Plan 17-162 Features 
Lot Characteristics:
Suited for a front view
Suited for a back view
Kitchen:
Eating bar
Nook / breakfast
Interior Features:
Family room
Open concept floor plan
Formal living room
Exterior Features:
Covered front porch
Wrap-around porch
 
 Plan 17-162 Detail 
Bedrooms: 3
Full Baths: 2
Levels/Stories: 1
Garage Stalls: 2
Total Sq. Ft.: 1932
Main floor: 1932
Garage: 529
Width: 58' 0"
Depth: 72' 0"
Height: 21' 6"
Roof Pitch (primary): 6:12
Walls: 2"x6"
Ceiling Height (Main): 8'

Monster House Plans Logo
Open the door to your dream house! (800)977-5267

Call Monster House Plans to learn more about buying and
customizing house plans in our collection. 6am-6pm Pacific Time
MHP title  
 
 
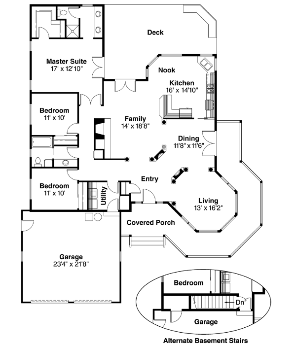
 Main Floor 
Main Floor Plan: 17-162
 

Monster House Plans Logo
Open the door to your dream house! (800)977-5267

Call Monster House Plans to learn more about buying and
customizing house plans in our collection. 6am-6pm Pacific Time
MHP title  
 
 
 Plan Sets 
  PDF   (recommended)   $2400
  This is the package you would want to buy if you want your plans right now, want to save the shipping costs, and are willing to have your copies made locally. Changes can also be made with PDF's.  
 
 
  PDF Light   $1150
  This is the package you would want to buy if you are not making modifications to the drawings. Although this is not an "Instant Download", it is the fastest way to receive your plan order, and, you save the shipping costs.  
 
 
  PDF Light + 5   $1425
  This is the package you would want to buy if you are not making modifications to the drawings. This is a PDF file that is emailed to you plus 5 complete sets that are shipped to you.  
 
 
  CAD   $2575
  This is the package you would want to buy if you are planning on making substantial modifications to the drawings and want to be able to make as many copies locally as you want.  
 
 
  Unlimited Build Construction - CAD   $2825
  This is the package you would want to buy if you are a professional builder wanting to build multiple houses from this design. This comes with the CAD file AND the unlimited build license  
 
 
  Single   $900
  This is the appropriate package to buy if have decided on a particular plan, but want to have your builder give you a firm cost. However, they are stamped "Not for Construction" and do not include a construction license required to build from them.  
 
 Foundation Options 
  Basement $ 460
  Crawlspace Standard With Plan
  Slab $ 350
 Other Options 
  Right Reading Reverse - The plan is reversed with all text reading correctly. $300
  Extra Sets - Additional sets are available only with the purchase of a construction set (8 copy, or 5 copy). $55
  Additional Build License $900

Monster House Plans Logo
Open the door to your dream house! (800)977-5267

Call Monster House Plans to learn more about buying and
customizing house plans in our collection. 6am-6pm Pacific Time
MHP title  


Refund / Exchange Policy:

Plans printed by MonsterHousePlans.com's designers are refundable within 10 business days of purchase under the following conditions:

Plans are in their sealed, original packaging and have not been opened (to be determined by the firm that shipped the original order). Customer will pay a 20% re-stocking fee plus all shipping charges. Reproducibles, CAD Files & PDF's are not refundable under any circumstances due to copyright issues.

Plans ordered from MonsterHousePlans.com may be exchanged within 30 days of purchase under the following conditions:

Upon designer approval, customer may exchange for a plan within the same designer's collection (plan number to have same prefix). Customer will pay 20- 40% of the amount of the original order for re-stocking, plus the difference in cost if exchanging for a higher priced plan. Customer will also be responsible for all shipping charges. Reproducibles, CAD Files & PDF's are not exchangeable under any circumstances due to copyright issues.


Important Stuff

MonsterHousePlans provides home plans for construction purposes but does not oversee the construction. The plan purchaser is responsible for assuring the plan meets local codes and regulations. It is the responsibility of the plan purchaser to obtain any and all structural analysis, engineering and specifications that may be required in the municipality in which it is to be built. Plan purchaser is to verify all lot conditions and measurements before construction. Purchaser is responsible for additional expenses incurred in order to meet local code and engineering requirements.
Customer understands that the following conditions in your specific area may require additional engineering:
1. Wind / hurricane / tornado
2. Seismic / earthquake
3. Heavy snow
4. Flood potential
5. Soil instability
Customer understands that HVAC, Plumbing & Electrical will not be included in plans (other than location of plumbing fixtures and electrical lights, plugs & switches*).

Purchaser agrees that the use of the plan is for the construction of one house only*, and that the plan or any part of it will not be reproduced by any means without the written consent of the copyright owner.

*Unless otherwise noted.