Monster House Plans Logo
Open the door to your dream house! (800)977-5267

Call Monster House Plans to learn more about buying and
customizing house plans in our collection. 6am-6pm Pacific Time
MHP title  
Plan 2-337 Image
All images are copyrighted by designer. Do not reproduce or publish without permission.
 Plan 2-337 Features 
Lot Characteristics:
Suited for corner lots
Bedrooms & Baths:
Split bedrooms
Kitchen:
Island
Walk-in pantry
Eating bar
Nook / breakfast
Interior Features:
Great room
Mud room
Formal dining room
Den / office / computer
Exterior Features:
Covered rear porch
 
Garage:
Side-entry garage
 Plan 2-337 Detail 
Bedrooms: 3
Full Baths: 2
Half Baths: 1
Levels/Stories: 1
Garage Stalls: 2
Total Sq. Ft.: 2419
Main floor: 2419
Garage: 734
Porches: 138
Width: 69' 2"
Depth: 63' 2"
Height: 26' 4"
Roof Pitch (primary): 10:12
Roof Pitch (secondary): 12:12
Walls: 2"x4"
Ceiling Height (Main): 9'
 Short Description 
Looking for the house that has it all? Then look no further. This beautiful European Country design features all the things that make a house a home. Three over-sized bedrooms are complimented by large closets, and the flex space provides a perfect spot for that home office, playroom, or fourth bedroom. A formal dining room, breakfast area, and raised bar all provide spaces for those family meals with close access to the fully equipped kitchen. The great room includes gas logs, a trayed ceiling, and beautiful views through french doors to the covered rear porch beyond. The master bedroom also features trayed ceilings and the master bathroom leaves nothing to be desired. The expansive garage provides plenty of room for oversized trucks and SUV's and also includes storage areas. This is the perfect home for you and your family!

Monster House Plans Logo
Open the door to your dream house! (800)977-5267

Call Monster House Plans to learn more about buying and
customizing house plans in our collection. 6am-6pm Pacific Time
MHP title  
 
 
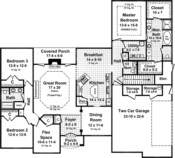
 Main Floor 
Main Floor Plan: 2-337
 

Monster House Plans Logo
Open the door to your dream house! (800)977-5267

Call Monster House Plans to learn more about buying and
customizing house plans in our collection. 6am-6pm Pacific Time
MHP title  
 
 
 Rear Elevations 
Rear Elevations Plan:2-337
 

Monster House Plans Logo
Open the door to your dream house! (800)977-5267

Call Monster House Plans to learn more about buying and
customizing house plans in our collection. 6am-6pm Pacific Time
MHP title  
 
 
 Plan Sets 
  5-set   $1530
  This is the basic package that includes what most owner/builders need in paper form.  
 
 
  PDF   (recommended)   $1645
  This is the package you would want to buy if you want your plans right now, want to save the shipping costs, and are willing to have your copies made locally. Changes can also be made with PDF's.  
 
 
  PDF + 5   $1725
  This is the package you would want to buy if you are not making modifications to the drawings and also want 5 printed sets. This includes a single license to build.  
 
 
  CAD   $2230
  This is the package you would want to buy if you are planning on making substantial modifications to the drawings and want to be able to make as many copies locally as you want.  
 
 
  Single   $1360
  This is the appropriate package to buy if have decided on a particular plan, but want to have your builder give you a firm cost. However, they are stamped "Not for Construction" and do not include a construction license required to build from them.  
 
 Foundation Options 
  Basement Standard With Plan
  Crawlspace $ 125
  Slab $ 125
 Other Options 
  Right Reading Reverse - The plan is reversed with all text reading correctly. $150
  Extra Sets - Additional sets are available only with the purchase of a construction set (8 copy, or 5 copy). $60
  Material List $150
  Convert to 2" x 6" $250

Monster House Plans Logo
Open the door to your dream house! (800)977-5267

Call Monster House Plans to learn more about buying and
customizing house plans in our collection. 6am-6pm Pacific Time
MHP title  


Refund / Exchange Policy:

Plans printed by MonsterHousePlans.com's designers are refundable within 10 business days of purchase under the following conditions:

Plans are in their sealed, original packaging and have not been opened (to be determined by the firm that shipped the original order). Customer will pay a 20% re-stocking fee plus all shipping charges. Reproducibles, CAD Files & PDF's are not refundable under any circumstances due to copyright issues.

Plans ordered from MonsterHousePlans.com may be exchanged within 30 days of purchase under the following conditions:

Upon designer approval, customer may exchange for a plan within the same designer's collection (plan number to have same prefix). Customer will pay 20- 40% of the amount of the original order for re-stocking, plus the difference in cost if exchanging for a higher priced plan. Customer will also be responsible for all shipping charges. Reproducibles, CAD Files & PDF's are not exchangeable under any circumstances due to copyright issues.


Important Stuff

MonsterHousePlans provides home plans for construction purposes but does not oversee the construction. The plan purchaser is responsible for assuring the plan meets local codes and regulations. It is the responsibility of the plan purchaser to obtain any and all structural analysis, engineering and specifications that may be required in the municipality in which it is to be built. Plan purchaser is to verify all lot conditions and measurements before construction. Purchaser is responsible for additional expenses incurred in order to meet local code and engineering requirements.
Customer understands that the following conditions in your specific area may require additional engineering:
1. Wind / hurricane / tornado
2. Seismic / earthquake
3. Heavy snow
4. Flood potential
5. Soil instability
Customer understands that HVAC, Plumbing & Electrical will not be included in plans (other than location of plumbing fixtures and electrical lights, plugs & switches*).

Purchaser agrees that the use of the plan is for the construction of one house only*, and that the plan or any part of it will not be reproduced by any means without the written consent of the copyright owner.

*Unless otherwise noted.