Monster House Plans Logo
Open the door to your dream house! (800)977-5267

Call Monster House Plans to learn more about buying and
customizing house plans in our collection. 6am-6pm Pacific Time
MHP title  
Plan 23-265 Image
All images are copyrighted by designer. Do not reproduce or publish without permission.
 Plan 23-265 Features 
Lot Characteristics:
Suited for corner lots
Suited for a down-sloping lot
Bedrooms & Baths:
Split bedrooms
Kitchen:
Eating bar
Nook / breakfast
Interior Features:
Hobby / rec-room
Great room
Library
Formal dining room
Unfinished/future space
Exterior Features:
Covered front porch
 
Unique Features:
Vaulted/Volume/Dramatic ceilings
 
Garage:
Side-entry garage
 Plan 23-265 Detail 
Bedrooms: 3
Full Baths: 2
Levels/Stories: 1
Garage Stalls: 2
Total Sq. Ft.: 2341
Main floor: 2341
Lower Floor: 1964
Width: 69' 2"
Depth: 53' 0"
Walls: 2"x4"
 Short Description 
A great room with 12' ceiling height informal dining and a kitchen with snack bar combine to form the family activity center on this beautiful one level home. A formal dining room and library compliment the entry and the brick and stone exterior showcase a spectacular curb appeal. Split bedrooms provide privacy to the master bedroom suite while a luxurious bath pampers the homeowner. A full basement with walk7#45out to the rear offers additional space that can be finished for a fourth bedroom bath and recreation room.

Monster House Plans Logo
Open the door to your dream house! (800)977-5267

Call Monster House Plans to learn more about buying and
customizing house plans in our collection. 6am-6pm Pacific Time
MHP title  
 
 
 Main Floor 
Main Floor Plan: 23-265
 

Monster House Plans Logo
Open the door to your dream house! (800)977-5267

Call Monster House Plans to learn more about buying and
customizing house plans in our collection. 6am-6pm Pacific Time
MHP title  
 
 
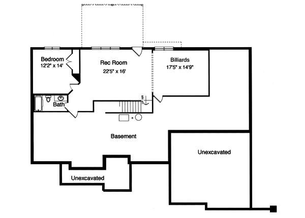
 Lower Floor 
Lower Floor Plan:23-265
 

Monster House Plans Logo
Open the door to your dream house! (800)977-5267

Call Monster House Plans to learn more about buying and
customizing house plans in our collection. 6am-6pm Pacific Time
MHP title  
 
 
 Plan Sets 
  PDF   (recommended)   $1050
  This is the package you would want to buy if you want your plans right now, want to save the shipping costs, and are willing to have your copies made locally. Changes can also be made with PDF's.  
 
 
  Unlimited Build Construction - PDF   $1425
  This is the package you would want to by if you are a professional builder wanting to build multiple house from this design. this comes with the PDF file AND the unlimited build license.  
 
 
  PDF + 5   $1100
  This is the package you would want to buy if you are not making modifications to the drawings and also want 5 printed sets. This includes a single license to build.  
 
 
  Unlimited Build Construction - CAD   $1775
  This is the package you would want to buy if you are a professional builder wanting to build multiple houses from this design. This comes with the CAD file AND the unlimited build license  
 
 
  Single   $820
  This is the appropriate package to buy if have decided on a particular plan, but want to have your builder give you a firm cost. However, they are stamped "Not for Construction" and do not include a construction license required to build from them.  
 
 Foundation Options 
  Walk-out basement Standard With Plan
 Other Options 
  Extra Sets - Additional sets are available only with the purchase of a construction set (8 copy, or 5 copy). $50
  Material List $85
  Additional Build License $350

Monster House Plans Logo
Open the door to your dream house! (800)977-5267

Call Monster House Plans to learn more about buying and
customizing house plans in our collection. 6am-6pm Pacific Time
MHP title  


Refund / Exchange Policy:

Plans printed by MonsterHousePlans.com's designers are refundable within 10 business days of purchase under the following conditions:

Plans are in their sealed, original packaging and have not been opened (to be determined by the firm that shipped the original order). Customer will pay a 20% re-stocking fee plus all shipping charges. Reproducibles, CAD Files & PDF's are not refundable under any circumstances due to copyright issues.

Plans ordered from MonsterHousePlans.com may be exchanged within 30 days of purchase under the following conditions:

Upon designer approval, customer may exchange for a plan within the same designer's collection (plan number to have same prefix). Customer will pay 20- 40% of the amount of the original order for re-stocking, plus the difference in cost if exchanging for a higher priced plan. Customer will also be responsible for all shipping charges. Reproducibles, CAD Files & PDF's are not exchangeable under any circumstances due to copyright issues.


Important Stuff

MonsterHousePlans provides home plans for construction purposes but does not oversee the construction. The plan purchaser is responsible for assuring the plan meets local codes and regulations. It is the responsibility of the plan purchaser to obtain any and all structural analysis, engineering and specifications that may be required in the municipality in which it is to be built. Plan purchaser is to verify all lot conditions and measurements before construction. Purchaser is responsible for additional expenses incurred in order to meet local code and engineering requirements.
Customer understands that the following conditions in your specific area may require additional engineering:
1. Wind / hurricane / tornado
2. Seismic / earthquake
3. Heavy snow
4. Flood potential
5. Soil instability
Customer understands that HVAC, Plumbing & Electrical will not be included in plans (other than location of plumbing fixtures and electrical lights, plugs & switches*).

Purchaser agrees that the use of the plan is for the construction of one house only*, and that the plan or any part of it will not be reproduced by any means without the written consent of the copyright owner.

*Unless otherwise noted.