Monster House Plans Logo
Open the door to your dream house! (800)977-5267

Call Monster House Plans to learn more about buying and
customizing house plans in our collection. 6am-6pm Pacific Time
MHP title  
Plan 26-111 Image
All images are copyrighted by designer. Do not reproduce or publish without permission.
 Plan 26-111 Features 
Lot Characteristics:
Suited for a back view
Suited For A Vacation Home
Bedrooms & Baths:
Upstairs Master
Guest suite
Kitchen:
Eating bar
Interior Features:
Great room
Loft / balcony
Open concept floor plan
No formal living/dining
Exterior Features:
Wrap-around porch
 
 Plan 26-111 Detail 
Bedrooms: 2
Full Baths: 2
Levels/Stories: 2
Total Sq. Ft.: 1904
Main floor: 1008
Upper floor: 896
Basement: 1008
Width: 40' 0"
Depth: 50' 6"
Height: 29' 0"
Roof Pitch (primary): 12:12
Roof Pitch (secondary): 6:12
Walls: 2"x6"
Ceiling Height (Main): 8'
Ceiling Height (Upper): 10'
 Short Description 
While an economical footprint this cottage manages to boast large interior room sizes.

Virtually two great rooms, one up and one down, ensure any foreseeable activities are accommodated.

The laundry facilities are located in the unfinished basement which also provides more than ample recreational storage space.

The entire second level is dedicated to the Master Suite and all its amenities including a covered private balcony.

High ceilings, plant ledges and plenty of window locations make this a truly luxurious indulging retreat.

Monster House Plans Logo
Open the door to your dream house! (800)977-5267

Call Monster House Plans to learn more about buying and
customizing house plans in our collection. 6am-6pm Pacific Time
MHP title  
 
 
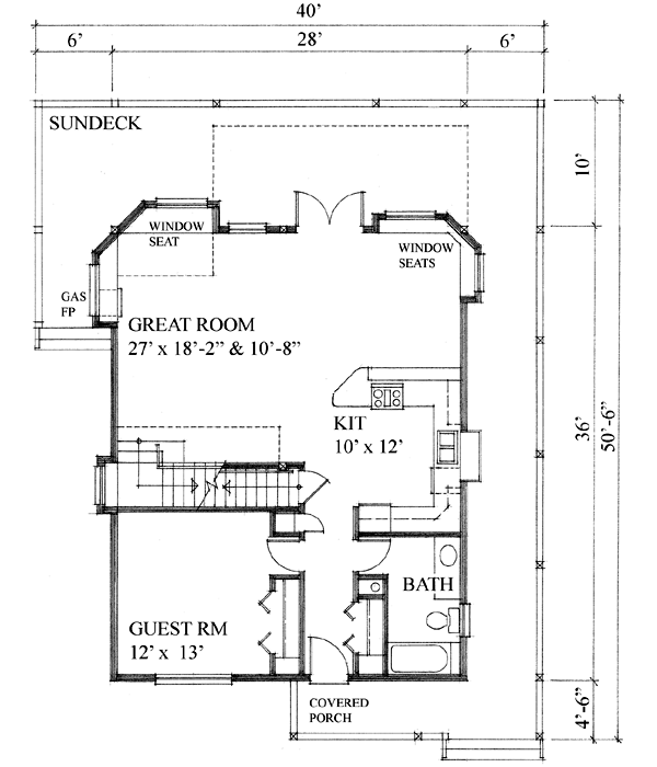
 Main Floor 
Main Floor Plan: 26-111
 

Monster House Plans Logo
Open the door to your dream house! (800)977-5267

Call Monster House Plans to learn more about buying and
customizing house plans in our collection. 6am-6pm Pacific Time
MHP title  
 
 
 Upper/Second Floor 
Upper/Second Floor Plan:26-111
 

Monster House Plans Logo
Open the door to your dream house! (800)977-5267

Call Monster House Plans to learn more about buying and
customizing house plans in our collection. 6am-6pm Pacific Time
MHP title  
 
 
 Plan Sets 
  5-set   $675
  This is the basic package that includes what most owner/builders need in paper form.  
 
 
  PDF   (recommended)   $945
  This is the package you would want to buy if you want your plans right now, want to save the shipping costs, and are willing to have your copies made locally. Changes can also be made with PDF's.  
 
 
 
 Foundation Options 
  Basement Standard With Plan
 Other Options 
  Right Reading Reverse - The plan is reversed with all text reading correctly. $195
  Mirror Reverse - A Mirror Reverse is a mirrored image of the home plan, with the text appearing backwards. $120
  Extra Sets - Additional sets are available only with the purchase of a construction set (8 copy, or 5 copy). $60
  Material List $95

Monster House Plans Logo
Open the door to your dream house! (800)977-5267

Call Monster House Plans to learn more about buying and
customizing house plans in our collection. 6am-6pm Pacific Time
MHP title  


Refund / Exchange Policy:

Plans printed by MonsterHousePlans.com's designers are refundable within 10 business days of purchase under the following conditions:

Plans are in their sealed, original packaging and have not been opened (to be determined by the firm that shipped the original order). Customer will pay a 20% re-stocking fee plus all shipping charges. Reproducibles, CAD Files & PDF's are not refundable under any circumstances due to copyright issues.

Plans ordered from MonsterHousePlans.com may be exchanged within 30 days of purchase under the following conditions:

Upon designer approval, customer may exchange for a plan within the same designer's collection (plan number to have same prefix). Customer will pay 20- 40% of the amount of the original order for re-stocking, plus the difference in cost if exchanging for a higher priced plan. Customer will also be responsible for all shipping charges. Reproducibles, CAD Files & PDF's are not exchangeable under any circumstances due to copyright issues.


Important Stuff

MonsterHousePlans provides home plans for construction purposes but does not oversee the construction. The plan purchaser is responsible for assuring the plan meets local codes and regulations. It is the responsibility of the plan purchaser to obtain any and all structural analysis, engineering and specifications that may be required in the municipality in which it is to be built. Plan purchaser is to verify all lot conditions and measurements before construction. Purchaser is responsible for additional expenses incurred in order to meet local code and engineering requirements.
Customer understands that the following conditions in your specific area may require additional engineering:
1. Wind / hurricane / tornado
2. Seismic / earthquake
3. Heavy snow
4. Flood potential
5. Soil instability
Customer understands that HVAC, Plumbing & Electrical will not be included in plans (other than location of plumbing fixtures and electrical lights, plugs & switches*).

Purchaser agrees that the use of the plan is for the construction of one house only*, and that the plan or any part of it will not be reproduced by any means without the written consent of the copyright owner.

*Unless otherwise noted.