Monster House Plans Logo
Open the door to your dream house! (800)977-5267

Call Monster House Plans to learn more about buying and
customizing house plans in our collection. 6am-6pm Pacific Time
MHP title  
Plan 30-412 Image
All images are copyrighted by designer. Do not reproduce or publish without permission.
 Plan 30-412 Features 
Lot Characteristics:
Suited for corner lots
Bedrooms & Baths:
Main floor Master
Kitchen:
Island
Butler's pantry
Eating bar
Interior Features:
Bonus room
Main Floor laundry
Loft / balcony
Open concept floor plan
Mud room
No formal living/dining
Unfinished/future space
Exterior Features:
Covered front porch
Covered rear porch
Screened porch/sunroom
Breezeway
 
Unique Features:
Vaulted/Volume/Dramatic ceilings
 
Garage:
Workshop
Detached garage
Side-entry garage
 Plan 30-412 Detail 
Bedrooms: 3
Full Baths: 2
Levels/Stories: 2
Garage Stalls: 2
Total Sq. Ft.: 1775
Main floor: 1253
Upper floor: 522
Bonus Room: 369
Garage: 660
Porches: 684
Width: 76' 0"
Depth: 48' 0"
Height: 26' 0"
Roof Pitch (primary): 10:12
Walls: 2"x6"
Ceiling Height (Main): 10'
Ceiling Height (Upper): 8'
 Short Description 
Allow up to 4 weeks for delivery of right reading reverse or alternate basement or slab foundation.
 Design Comments 
Super Energy Saving Southern Style
This 3 bedroom, 2.5 bath home is designed to cut the cost of heating and cooling in half. The construction documents contain dozens of energy saving features that cost very little extra but will save enormous amounts of energy over the life of the home. Some of the energy saving features includes 2x6 exterior walls, modified raised plate to allow 12” of ceiling insulation, insulated doors and windows, duct work located to insure no heat loss or gain and a host of other features. The living room has sloped ceilings to the upper level which allows the upper level balcony to have a view of the living room below. The upper level balcony has built in book shelves for the students in the family. There are also built in book shelves in the living room. The kitchen is fully appointed and has an island with a raised bar, book shelves and a trash compactor. The adjacent utility room has a laundry sink and a large pantry. The master suite bath has an appliance garage, glass shower, whirlpool tub, private toilet and dual sink vanity. The mbr closet, with dual clothes rods, has 32’ of hanging space. The dining room has a coffered ceiling and it is open to the kitchen and living room. The front and rear porches feature beamed ceilings with beaded board ceiling finish. The garage is a man’s delight with a built-in work bench, tons of storage and a large future room above which includes a half bath. With large front and rear porches, this is an excellent home to sit and relax and leave your cares behind.

Monster House Plans Logo
Open the door to your dream house! (800)977-5267

Call Monster House Plans to learn more about buying and
customizing house plans in our collection. 6am-6pm Pacific Time
MHP title  
 
 
 Main Floor 
Main Floor Plan: 30-412
 

Monster House Plans Logo
Open the door to your dream house! (800)977-5267

Call Monster House Plans to learn more about buying and
customizing house plans in our collection. 6am-6pm Pacific Time
MHP title  
 
 
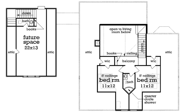
 Upper/Second Floor 
Upper/Second Floor Plan:30-412
 

Monster House Plans Logo
Open the door to your dream house! (800)977-5267

Call Monster House Plans to learn more about buying and
customizing house plans in our collection. 6am-6pm Pacific Time
MHP title  
 
 
 Rear Elevations 
Rear Elevations Plan:30-412
 

Monster House Plans Logo
Open the door to your dream house! (800)977-5267

Call Monster House Plans to learn more about buying and
customizing house plans in our collection. 6am-6pm Pacific Time
MHP title  
 
 
 Plan Sets 
  5-set   $1130
  This is the basic package that includes what most owner/builders need in paper form.  
 
 
  8-set   $1240
  This is the basic package that includes what most owner/builders need in paper form.  
 
 
  PDF   (recommended)   $1000
  This is the package you would want to buy if you want your plans right now, want to save the shipping costs, and are willing to have your copies made locally. Changes can also be made with PDF's.  
 
 
  PDF + 5   $1255
  This is the package you would want to buy if you are not making modifications to the drawings and also want 5 printed sets. This includes a single license to build.  
 
 
  CAD   $1900
  This is the package you would want to buy if you are planning on making substantial modifications to the drawings and want to be able to make as many copies locally as you want.  
 
 
 
 Foundation Options 
  Basement $ 175
  Crawlspace Standard With Plan
  Slab $ 175
 Other Options 
  Right Reading Reverse - The plan is reversed with all text reading correctly. $150
  Extra Sets - Additional sets are available only with the purchase of a construction set (8 copy, or 5 copy). $45
  Material List $90
  Additional Build License $200

Monster House Plans Logo
Open the door to your dream house! (800)977-5267

Call Monster House Plans to learn more about buying and
customizing house plans in our collection. 6am-6pm Pacific Time
MHP title  


Refund / Exchange Policy:

Plans printed by MonsterHousePlans.com's designers are refundable within 10 business days of purchase under the following conditions:

Plans are in their sealed, original packaging and have not been opened (to be determined by the firm that shipped the original order). Customer will pay a 20% re-stocking fee plus all shipping charges. Reproducibles, CAD Files & PDF's are not refundable under any circumstances due to copyright issues.

Plans ordered from MonsterHousePlans.com may be exchanged within 30 days of purchase under the following conditions:

Upon designer approval, customer may exchange for a plan within the same designer's collection (plan number to have same prefix). Customer will pay 20- 40% of the amount of the original order for re-stocking, plus the difference in cost if exchanging for a higher priced plan. Customer will also be responsible for all shipping charges. Reproducibles, CAD Files & PDF's are not exchangeable under any circumstances due to copyright issues.


Important Stuff

MonsterHousePlans provides home plans for construction purposes but does not oversee the construction. The plan purchaser is responsible for assuring the plan meets local codes and regulations. It is the responsibility of the plan purchaser to obtain any and all structural analysis, engineering and specifications that may be required in the municipality in which it is to be built. Plan purchaser is to verify all lot conditions and measurements before construction. Purchaser is responsible for additional expenses incurred in order to meet local code and engineering requirements.
Customer understands that the following conditions in your specific area may require additional engineering:
1. Wind / hurricane / tornado
2. Seismic / earthquake
3. Heavy snow
4. Flood potential
5. Soil instability
Customer understands that HVAC, Plumbing & Electrical will not be included in plans (other than location of plumbing fixtures and electrical lights, plugs & switches*).

Purchaser agrees that the use of the plan is for the construction of one house only*, and that the plan or any part of it will not be reproduced by any means without the written consent of the copyright owner.

*Unless otherwise noted.