Monster House Plans Logo
Open the door to your dream house! (800)977-5267

Call Monster House Plans to learn more about buying and
customizing house plans in our collection. 6am-6pm Pacific Time
MHP title  
Plan 34-118 Image
All images are copyrighted by designer. Do not reproduce or publish without permission.
 Plan 34-118 Features 
Lot Characteristics:
Suited for corner lots
Suited for a back view
Suited For A Vacation Home
Kitchen:
Island
Walk-in pantry
Eating bar
Interior Features:
Family room
Great room
Open concept floor plan
Mud room
No formal living/dining
Den / office / computer
Exterior Features:
Covered front porch
Covered rear porch
Grilling porch/outdoor kitchen
 
Unique Features:
Vaulted/Volume/Dramatic ceilings
Inverted living
 
Garage:
Oversized garage (3+)
Side-entry garage
 Plan 34-118 Detail 
Bedrooms: 3
Full Baths: 2
Half Baths: 1
Levels/Stories: 1
Garage Stalls: 3
Total Sq. Ft.: 3755
Main floor: 1944
Lower Floor: 1811
Porches: 768
Width: 69' 10"
Depth: 42' 0"
Height: 31' 9"
Roof Pitch (primary): 8:12
Walls: Log
Ceiling Height (Main): 9'

Monster House Plans Logo
Open the door to your dream house! (800)977-5267

Call Monster House Plans to learn more about buying and
customizing house plans in our collection. 6am-6pm Pacific Time
MHP title  
 
 
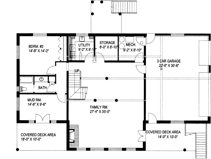
 Main Floor 
Main Floor Plan: 34-118
 

Monster House Plans Logo
Open the door to your dream house! (800)977-5267

Call Monster House Plans to learn more about buying and
customizing house plans in our collection. 6am-6pm Pacific Time
MHP title  
 
 
 Lower Floor 
Lower Floor Plan:34-118
 

Monster House Plans Logo
Open the door to your dream house! (800)977-5267

Call Monster House Plans to learn more about buying and
customizing house plans in our collection. 6am-6pm Pacific Time
MHP title  
 
 
 Rear Elevations 
Rear Elevations Plan:34-118
 

Monster House Plans Logo
Open the door to your dream house! (800)977-5267

Call Monster House Plans to learn more about buying and
customizing house plans in our collection. 6am-6pm Pacific Time
MHP title  
 
 
 Plan Sets 
  5-set   $1795
  This is the basic package that includes what most owner/builders need in paper form.  
 
 
  PDF   (recommended)   $1895
  This is the package you would want to buy if you want your plans right now, want to save the shipping costs, and are willing to have your copies made locally. Changes can also be made with PDF's.  
 
 
  PDF + 5   $2045
  This is the package you would want to buy if you are not making modifications to the drawings and also want 5 printed sets. This includes a single license to build.  
 
 
  CAD   $1895
  This is the package you would want to buy if you are planning on making substantial modifications to the drawings and want to be able to make as many copies locally as you want.  
 
 
  Unlimited Build Construction - CAD   $2595
  This is the package you would want to buy if you are a professional builder wanting to build multiple houses from this design. This comes with the CAD file AND the unlimited build license  
 
 
 
 Foundation Options 
  Daylight basement Standard With Plan
 Other Options 
  Right Reading Reverse - The plan is reversed with all text reading correctly. $195
  Extra Sets - Additional sets are available only with the purchase of a construction set (8 copy, or 5 copy). $75

Monster House Plans Logo
Open the door to your dream house! (800)977-5267

Call Monster House Plans to learn more about buying and
customizing house plans in our collection. 6am-6pm Pacific Time
MHP title  


Refund / Exchange Policy:

Plans printed by MonsterHousePlans.com's designers are refundable within 10 business days of purchase under the following conditions:

Plans are in their sealed, original packaging and have not been opened (to be determined by the firm that shipped the original order). Customer will pay a 20% re-stocking fee plus all shipping charges. Reproducibles, CAD Files & PDF's are not refundable under any circumstances due to copyright issues.

Plans ordered from MonsterHousePlans.com may be exchanged within 30 days of purchase under the following conditions:

Upon designer approval, customer may exchange for a plan within the same designer's collection (plan number to have same prefix). Customer will pay 20- 40% of the amount of the original order for re-stocking, plus the difference in cost if exchanging for a higher priced plan. Customer will also be responsible for all shipping charges. Reproducibles, CAD Files & PDF's are not exchangeable under any circumstances due to copyright issues.


Important Stuff

MonsterHousePlans provides home plans for construction purposes but does not oversee the construction. The plan purchaser is responsible for assuring the plan meets local codes and regulations. It is the responsibility of the plan purchaser to obtain any and all structural analysis, engineering and specifications that may be required in the municipality in which it is to be built. Plan purchaser is to verify all lot conditions and measurements before construction. Purchaser is responsible for additional expenses incurred in order to meet local code and engineering requirements.
Customer understands that the following conditions in your specific area may require additional engineering:
1. Wind / hurricane / tornado
2. Seismic / earthquake
3. Heavy snow
4. Flood potential
5. Soil instability
Customer understands that HVAC, Plumbing & Electrical will not be included in plans (other than location of plumbing fixtures and electrical lights, plugs & switches*).

Purchaser agrees that the use of the plan is for the construction of one house only*, and that the plan or any part of it will not be reproduced by any means without the written consent of the copyright owner.

*Unless otherwise noted.