Monster House Plans Logo
Open the door to your dream house! (800)977-5267

Call Monster House Plans to learn more about buying and
customizing house plans in our collection. 6am-6pm Pacific Time
MHP title  
Plan 35-453 Image
All images are copyrighted by designer. Do not reproduce or publish without permission.
 Plan 35-453 Features 
Lot Characteristics:
Suited for a back view
Bedrooms & Baths:
Main floor Master
Kitchen:
Island
Eating bar
Nook / breakfast
Interior Features:
Great room
Main Floor laundry
Open concept floor plan
No formal living/dining
Unique Features:
Vaulted/Volume/Dramatic ceilings
 
 Plan 35-453 Detail 
Bedrooms: 4
Full Baths: 2
Half Baths: 1
Levels/Stories: 2
Garage Stalls: 2
Total Sq. Ft.: 2281
Main floor: 1542
Upper floor: 739
Garage: 479
Width: 56' 8"
Depth: 48' 8"
Height: 32' 0"
Roof Pitch (primary): 10:12
Walls: 2"x6"
Ceiling Height (Main): 8'
 Short Description 
A traditional brick facade, with soaring rooflines, gives this two-story family home an air of distinction. The vaulted entry is flanked by an elegant formal dining room with a tray ceiling and decorative columns to the left, and the master suite to the right. The gourmet kitchen with center island leads to a great room with an imposing fireplace. The elegant main-floor master suite features a large walk-in closet and bath with whirlpool and separate shower. Family bedrooms are on the second floor--one is appointed with a window seat. All three of these bedrooms share the use of a full bath.

Monster House Plans Logo
Open the door to your dream house! (800)977-5267

Call Monster House Plans to learn more about buying and
customizing house plans in our collection. 6am-6pm Pacific Time
MHP title  
 
 
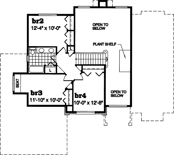
 Main Floor 
Main Floor Plan: 35-453
 

Monster House Plans Logo
Open the door to your dream house! (800)977-5267

Call Monster House Plans to learn more about buying and
customizing house plans in our collection. 6am-6pm Pacific Time
MHP title  
 
 
 Upper/Second Floor 
Upper/Second Floor Plan:35-453
 

Monster House Plans Logo
Open the door to your dream house! (800)977-5267

Call Monster House Plans to learn more about buying and
customizing house plans in our collection. 6am-6pm Pacific Time
MHP title  
 
 
 Rear Elevations 
Rear Elevations Plan:35-453
 

Monster House Plans Logo
Open the door to your dream house! (800)977-5267

Call Monster House Plans to learn more about buying and
customizing house plans in our collection. 6am-6pm Pacific Time
MHP title  
 
 
 Plan Sets 
  5-set   $1109
  This is the basic package that includes what most owner/builders need in paper form.  
 
 
  8-set   $1480
  This is the basic package that includes what most owner/builders need in paper form.  
 
 
  PDF   (recommended)   $1130
  This is the package you would want to buy if you want your plans right now, want to save the shipping costs, and are willing to have your copies made locally. Changes can also be made with PDF's.  
 
 
  Unlimited Build Construction - PDF   $2260
  This is the package you would want to by if you are a professional builder wanting to build multiple house from this design. this comes with the PDF file AND the unlimited build license.  
 
 
  PDF + 5   $1580
  This is the package you would want to buy if you are not making modifications to the drawings and also want 5 printed sets. This includes a single license to build.  
 
 
  CAD   $2080
  This is the package you would want to buy if you are planning on making substantial modifications to the drawings and want to be able to make as many copies locally as you want.  
 
 
  Unlimited Build Construction - CAD   $2830
  This is the package you would want to buy if you are a professional builder wanting to build multiple houses from this design. This comes with the CAD file AND the unlimited build license  
 
 
  Single   $1180
  This is the appropriate package to buy if have decided on a particular plan, but want to have your builder give you a firm cost. However, they are stamped "Not for Construction" and do not include a construction license required to build from them.  
 
 Foundation Options 
  Basement Standard With Plan
  Walk-out basement $ 425
  Crawlspace Standard With Plan
  Slab $ 295
 Other Options 
  Right Reading Reverse - The plan is reversed with all text reading correctly. $195
  Extra Sets - Additional sets are available only with the purchase of a construction set (8 copy, or 5 copy). $60
  Material List $85
  Additional Build License $495

Monster House Plans Logo
Open the door to your dream house! (800)977-5267

Call Monster House Plans to learn more about buying and
customizing house plans in our collection. 6am-6pm Pacific Time
MHP title  


Refund / Exchange Policy:

Plans printed by MonsterHousePlans.com's designers are refundable within 10 business days of purchase under the following conditions:

Plans are in their sealed, original packaging and have not been opened (to be determined by the firm that shipped the original order). Customer will pay a 20% re-stocking fee plus all shipping charges. Reproducibles, CAD Files & PDF's are not refundable under any circumstances due to copyright issues.

Plans ordered from MonsterHousePlans.com may be exchanged within 30 days of purchase under the following conditions:

Upon designer approval, customer may exchange for a plan within the same designer's collection (plan number to have same prefix). Customer will pay 20- 40% of the amount of the original order for re-stocking, plus the difference in cost if exchanging for a higher priced plan. Customer will also be responsible for all shipping charges. Reproducibles, CAD Files & PDF's are not exchangeable under any circumstances due to copyright issues.


Important Stuff

MonsterHousePlans provides home plans for construction purposes but does not oversee the construction. The plan purchaser is responsible for assuring the plan meets local codes and regulations. It is the responsibility of the plan purchaser to obtain any and all structural analysis, engineering and specifications that may be required in the municipality in which it is to be built. Plan purchaser is to verify all lot conditions and measurements before construction. Purchaser is responsible for additional expenses incurred in order to meet local code and engineering requirements.
Customer understands that the following conditions in your specific area may require additional engineering:
1. Wind / hurricane / tornado
2. Seismic / earthquake
3. Heavy snow
4. Flood potential
5. Soil instability
Customer understands that HVAC, Plumbing & Electrical will not be included in plans (other than location of plumbing fixtures and electrical lights, plugs & switches*).

Purchaser agrees that the use of the plan is for the construction of one house only*, and that the plan or any part of it will not be reproduced by any means without the written consent of the copyright owner.

*Unless otherwise noted.