Monster House Plans Logo
Open the door to your dream house! (800)977-5267

Call Monster House Plans to learn more about buying and
customizing house plans in our collection. 6am-6pm Pacific Time
MHP title  
Plan 5-1353 Image
All images are copyrighted by designer. Do not reproduce or publish without permission.
 Plan 5-1353 Features 
Lot Characteristics:
Suited for a narrow lot
Bedrooms & Baths:
Upstairs Master
Kitchen:
Island
Walk-in pantry
Eating bar
Interior Features:
Main Floor laundry
Open concept floor plan
No formal living/dining
Exterior Features:
Covered front porch
Covered rear porch
 
 Plan 5-1353 Detail 
Bedrooms: 3
Full Baths: 1
Half Baths: 1
Levels/Stories: 2
Total Sq. Ft.: 1775
Main floor: 1020
Upper floor: 752
Basement: 1020
Porches: 153
Width: 36' 0"
Depth: 28' 0"
Height: 27' 4"
Roof Pitch (primary): 12:12
Walls: 2"x6"
Ceiling Height (Main): 8'
Ceiling Height (Upper): 8'
 Short Description 
ul liBeautiful country style home with modern rustic touches! li liCovered wraparound porch on front and left elevations.li liRear covered deck with enough room to add an outdoor kitchen.li liTwo story entrace with a skylight and coat closet. li liKitchen with large pantry planning desk and good size kitchen island.li liHalf bath and laundry area located near kitchen.li liOpen kitchen dining room and living room concept with a fireplace.li liSlope ceiling on second floor.li liMaster bedroom with fireplace large walk-in closet and located near family bathroom.li liFamily bathroom with double vanities.li liEnclosed showerbath and toilet for more privacy.li liTwo secondary bedrooms with closet.li liLinen closet close to bathroom.li liUnfinished daylight basement.li ul
 Design Comments 
"This designer does not include electrical layouts with their designs."
"Allow up to 15 business days for delivery."

Monster House Plans Logo
Open the door to your dream house! (800)977-5267

Call Monster House Plans to learn more about buying and
customizing house plans in our collection. 6am-6pm Pacific Time
MHP title  
 
 
 Main Floor 
Main Floor Plan: 5-1353
 

Monster House Plans Logo
Open the door to your dream house! (800)977-5267

Call Monster House Plans to learn more about buying and
customizing house plans in our collection. 6am-6pm Pacific Time
MHP title  
 
 
 Upper/Second Floor 
Upper/Second Floor Plan:5-1353
 

Monster House Plans Logo
Open the door to your dream house! (800)977-5267

Call Monster House Plans to learn more about buying and
customizing house plans in our collection. 6am-6pm Pacific Time
MHP title  
 
 
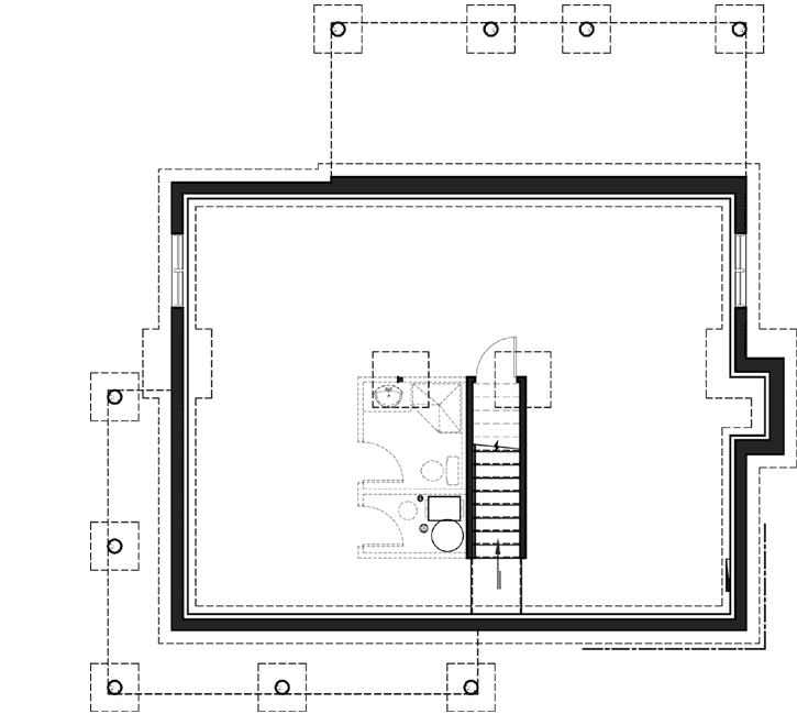
 Lower Floor 
Lower Floor Plan:5-1353
 

Monster House Plans Logo
Open the door to your dream house! (800)977-5267

Call Monster House Plans to learn more about buying and
customizing house plans in our collection. 6am-6pm Pacific Time
MHP title  
 
 
 Rear Elevations 
Rear Elevations Plan:5-1353
 

Monster House Plans Logo
Open the door to your dream house! (800)977-5267

Call Monster House Plans to learn more about buying and
customizing house plans in our collection. 6am-6pm Pacific Time
MHP title  
 
 
 Plan Sets 
  PDF   (recommended)   $1555
  This is the package you would want to buy if you want your plans right now, want to save the shipping costs, and are willing to have your copies made locally. Changes can also be made with PDF's.  
 
 
  PDF + 3   $1690
  This is the package you would want to buy if you are not making modifications to the drawings and also want 3 printed sets. This includes a single license to build.  
 
 
  CAD   $2555
  This is the package you would want to buy if you are planning on making substantial modifications to the drawings and want to be able to make as many copies locally as you want.  
 
 
 
 Foundation Options 
  Daylight basement Standard With Plan
  Crawlspace $ 395
  Slab $ 395
 Other Options 
  Right Reading Reverse - The plan is reversed with all text reading correctly. $225
  Extra Sets - Additional sets are available only with the purchase of a construction set (8 copy, or 5 copy). $65

Monster House Plans Logo
Open the door to your dream house! (800)977-5267

Call Monster House Plans to learn more about buying and
customizing house plans in our collection. 6am-6pm Pacific Time
MHP title  


Refund / Exchange Policy:

Plans printed by MonsterHousePlans.com's designers are refundable within 10 business days of purchase under the following conditions:

Plans are in their sealed, original packaging and have not been opened (to be determined by the firm that shipped the original order). Customer will pay a 20% re-stocking fee plus all shipping charges. Reproducibles, CAD Files & PDF's are not refundable under any circumstances due to copyright issues.

Plans ordered from MonsterHousePlans.com may be exchanged within 30 days of purchase under the following conditions:

Upon designer approval, customer may exchange for a plan within the same designer's collection (plan number to have same prefix). Customer will pay 20- 40% of the amount of the original order for re-stocking, plus the difference in cost if exchanging for a higher priced plan. Customer will also be responsible for all shipping charges. Reproducibles, CAD Files & PDF's are not exchangeable under any circumstances due to copyright issues.


Important Stuff

MonsterHousePlans provides home plans for construction purposes but does not oversee the construction. The plan purchaser is responsible for assuring the plan meets local codes and regulations. It is the responsibility of the plan purchaser to obtain any and all structural analysis, engineering and specifications that may be required in the municipality in which it is to be built. Plan purchaser is to verify all lot conditions and measurements before construction. Purchaser is responsible for additional expenses incurred in order to meet local code and engineering requirements.
Customer understands that the following conditions in your specific area may require additional engineering:
1. Wind / hurricane / tornado
2. Seismic / earthquake
3. Heavy snow
4. Flood potential
5. Soil instability
Customer understands that HVAC, Plumbing & Electrical will not be included in plans (other than location of plumbing fixtures and electrical lights, plugs & switches*).

Purchaser agrees that the use of the plan is for the construction of one house only*, and that the plan or any part of it will not be reproduced by any means without the written consent of the copyright owner.

*Unless otherwise noted.