Monster House Plans Logo
Open the door to your dream house! (800)977-5267

Call Monster House Plans to learn more about buying and
customizing house plans in our collection. 6am-6pm Pacific Time
MHP title  
Plan 63-262 Image
All images are copyrighted by designer. Do not reproduce or publish without permission.
 Plan 63-262 Features 
Lot Characteristics:
Suited for corner lots
Suited for a back view
Bedrooms & Baths:
Main floor Master
Master sitting area/Nursery
Teen suite/Jack & Jill bath
Kitchen:
Island
Eating bar
Nook / breakfast
Interior Features:
Family room
Hobby / rec-room
Main Floor laundry
Open concept floor plan
Mud room
Formal dining room
Den / office / computer
Unique Features:
Vaulted/Volume/Dramatic ceilings
 
Garage:
Oversized garage (3+)
Side-entry garage
 Plan 63-262 Detail 
Bedrooms: 3
Full Baths: 2
Levels/Stories: 2
Garage Stalls: 3
Total Sq. Ft.: 2566
Main floor: 1814
Upper floor: 752
Garage: 809
Porches: 243
Width: 64' 0"
Depth: 56' 0"
Height: 31' 6"
Roof Pitch (primary): 12:12
Walls: 2"x4"
Ceiling Height (Main): 10'
Ceiling Height (Upper): 9'
 Short Description 
This luxury starter castle house plan has plenty of space. The foyer leads into a quiet study with trey ceilings and bayed front window. The elegant dining room opens into the family room, which is connected to the kitchen and breakfast area. A warming fireplace in the family room makes this a cozy area for entertaining. The elegant master suite with its bay sitting area and trey ceilings, also boasts a large wardrobe, and master bath with his and her vanities, a garden tub and separate shower. The second story of this luxury house plan features a game room, two family bedrooms with a Jack and Jill bath and plenty of storage space. Views to the main level from above are awesome.

Monster House Plans Logo
Open the door to your dream house! (800)977-5267

Call Monster House Plans to learn more about buying and
customizing house plans in our collection. 6am-6pm Pacific Time
MHP title  
 
 
 Main Floor 
Main Floor Plan: 63-262
 

Monster House Plans Logo
Open the door to your dream house! (800)977-5267

Call Monster House Plans to learn more about buying and
customizing house plans in our collection. 6am-6pm Pacific Time
MHP title  
 
 
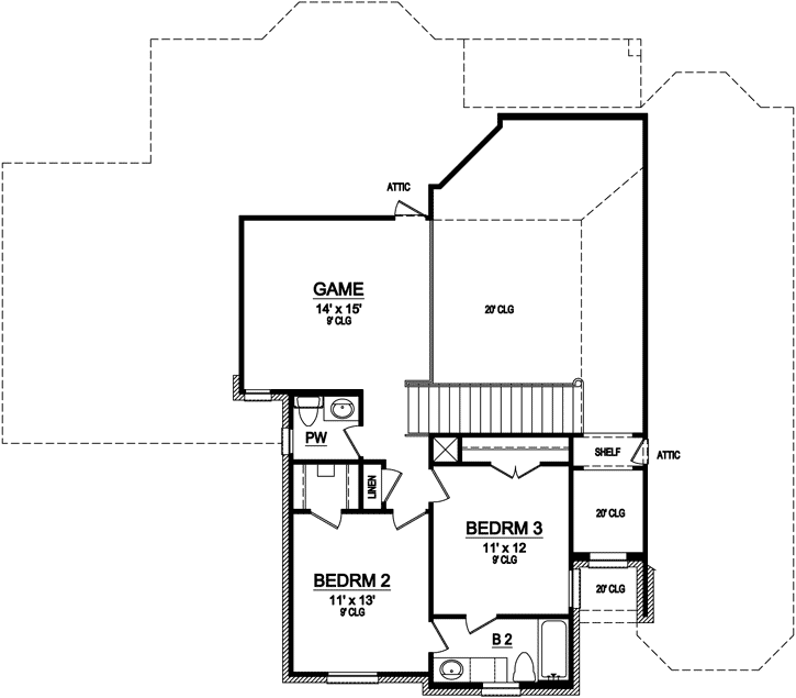
 Upper/Second Floor 
Upper/Second Floor Plan:63-262
 

Monster House Plans Logo
Open the door to your dream house! (800)977-5267

Call Monster House Plans to learn more about buying and
customizing house plans in our collection. 6am-6pm Pacific Time
MHP title  
 
 
 Rear Elevations 
Rear Elevations Plan:63-262
 

Monster House Plans Logo
Open the door to your dream house! (800)977-5267

Call Monster House Plans to learn more about buying and
customizing house plans in our collection. 6am-6pm Pacific Time
MHP title  
 
 
 Plan Sets 
  5-set   $1275
  This is the basic package that includes what most owner/builders need in paper form.  
 
 
  PDF   (recommended)   $1075
  This is the package you would want to buy if you want your plans right now, want to save the shipping costs, and are willing to have your copies made locally. Changes can also be made with PDF's.  
 
 
  CAD   $1620
  This is the package you would want to buy if you are planning on making substantial modifications to the drawings and want to be able to make as many copies locally as you want.  
 
 
 
 Foundation Options 
  Crawlspace $ 150
  Slab Standard With Plan
 Other Options 
  Right Reading Reverse - The plan is reversed with all text reading correctly. $250
  Extra Sets - Additional sets are available only with the purchase of a construction set (8 copy, or 5 copy). $75
  Additional Build License $500

Monster House Plans Logo
Open the door to your dream house! (800)977-5267

Call Monster House Plans to learn more about buying and
customizing house plans in our collection. 6am-6pm Pacific Time
MHP title  


Refund / Exchange Policy:

Plans printed by MonsterHousePlans.com's designers are refundable within 10 business days of purchase under the following conditions:

Plans are in their sealed, original packaging and have not been opened (to be determined by the firm that shipped the original order). Customer will pay a 20% re-stocking fee plus all shipping charges. Reproducibles, CAD Files & PDF's are not refundable under any circumstances due to copyright issues.

Plans ordered from MonsterHousePlans.com may be exchanged within 30 days of purchase under the following conditions:

Upon designer approval, customer may exchange for a plan within the same designer's collection (plan number to have same prefix). Customer will pay 20- 40% of the amount of the original order for re-stocking, plus the difference in cost if exchanging for a higher priced plan. Customer will also be responsible for all shipping charges. Reproducibles, CAD Files & PDF's are not exchangeable under any circumstances due to copyright issues.


Important Stuff

MonsterHousePlans provides home plans for construction purposes but does not oversee the construction. The plan purchaser is responsible for assuring the plan meets local codes and regulations. It is the responsibility of the plan purchaser to obtain any and all structural analysis, engineering and specifications that may be required in the municipality in which it is to be built. Plan purchaser is to verify all lot conditions and measurements before construction. Purchaser is responsible for additional expenses incurred in order to meet local code and engineering requirements.
Customer understands that the following conditions in your specific area may require additional engineering:
1. Wind / hurricane / tornado
2. Seismic / earthquake
3. Heavy snow
4. Flood potential
5. Soil instability
Customer understands that HVAC, Plumbing & Electrical will not be included in plans (other than location of plumbing fixtures and electrical lights, plugs & switches*).

Purchaser agrees that the use of the plan is for the construction of one house only*, and that the plan or any part of it will not be reproduced by any means without the written consent of the copyright owner.

*Unless otherwise noted.