Monster House Plans Logo
Open the door to your dream house! (800)977-5267

Call Monster House Plans to learn more about buying and
customizing house plans in our collection. 6am-6pm Pacific Time
MHP title  
Plan 63-351 Image
All images are copyrighted by designer. Do not reproduce or publish without permission.
 Plan 63-351 Features 
Lot Characteristics:
Suited for corner lots
Suited for a back view
Bedrooms & Baths:
Main floor Master
Guest suite
Split bedrooms
Teen suite/Jack & Jill bath
Kitchen:
Island
Walk-in pantry
Butler's pantry
Eating bar
Nook / breakfast
Interior Features:
Hobby / rec-room
Great room
Main Floor laundry
Media room
Open concept floor plan
Mud room
Formal dining room
Den / office / computer
Exterior Features:
Covered rear porch
 
Garage:
Oversized garage (3+)
Side-entry garage
 Plan 63-351 Detail 
Bedrooms: 5
Full Baths: 5
Half Baths: 1
Levels/Stories: 2
Garage Stalls: 3
Total Sq. Ft.: 5295
Main floor: 3435
Upper floor: 1860
Garage: 899
Porches: 1491
Width: 94' 0"
Depth: 77' 0"
Height: 32' 0"
Roof Pitch (primary): 14:12
Roof Pitch (secondary): 8:12
Walls: 2"x4"
Ceiling Height (Main): 11'
Ceiling Height (Upper): 9'
 Short Description 
This elegant stucco luxury European home plan is warm and stunning. From the moment you pass through the courtyard onto the porch with its decorative shaped cast stone water table and an optional decorative fountain, you'll know this home is perfect for you. The front door offers an overhead transom welcoming you into the foyer with its sloped ceiling. A barrel vaulted, sloped ceiling between the foyer and study will catch your eye. The foyer is flanked by a quiet study with a coffered ceiling, French doors and built-in book shelves. Beyond the study is a family bedroom with private bath, walk-in closet and plenty of windows. On the opposite side of the foyer is the elegant dining room with a trey ceiling. A wine room sits off the dining room through a decorative iron gate. The kitchen is conveniently located across the hall from the dining room, offering ease is serving those family dinners. The kitchen has a large pantry, a free-standing island and plenty of counter space and built-in appliances. The raised counter separating the kitchen from the breakfast room, offers plenty of extra eating space. The wall of windows in the breakfast room allows plenty of sunlight through to brighten your day. A second bedroom with full private bath and walk-in closet sits quietly behind the kitchen and breakfast area. A two-car and one-car garage in the front of the home offer access to a mud room and the utility room. Centrally located is the warming family room with a corner fireplace and access to the patio through a French door. Your view from the family room's rear windows allow you to keep an eye on the grilling in the outside living area. The master suite boasts a lovely trey ceiling and sitting area with built-in book shelves and plenty of windows. The master suite boasts a luxurious master bath with his and hers vanities, separate shower and garden tub, linen closet, and a large wardrobe with built-ins. Upstairs, a family bedroom with bathroom, and walk-in closet with built-ins, shares space with a game room with window seat, a loggia, and views to below. This grand home plan, offering plenty of arches, built-ins and interesting ceilings is a must see.
 Design Comments 
This design is not available within 100 of zip code 75032.

Monster House Plans Logo
Open the door to your dream house! (800)977-5267

Call Monster House Plans to learn more about buying and
customizing house plans in our collection. 6am-6pm Pacific Time
MHP title  
 
 
 Main Floor 
Main Floor Plan: 63-351
 

Monster House Plans Logo
Open the door to your dream house! (800)977-5267

Call Monster House Plans to learn more about buying and
customizing house plans in our collection. 6am-6pm Pacific Time
MHP title  
 
 
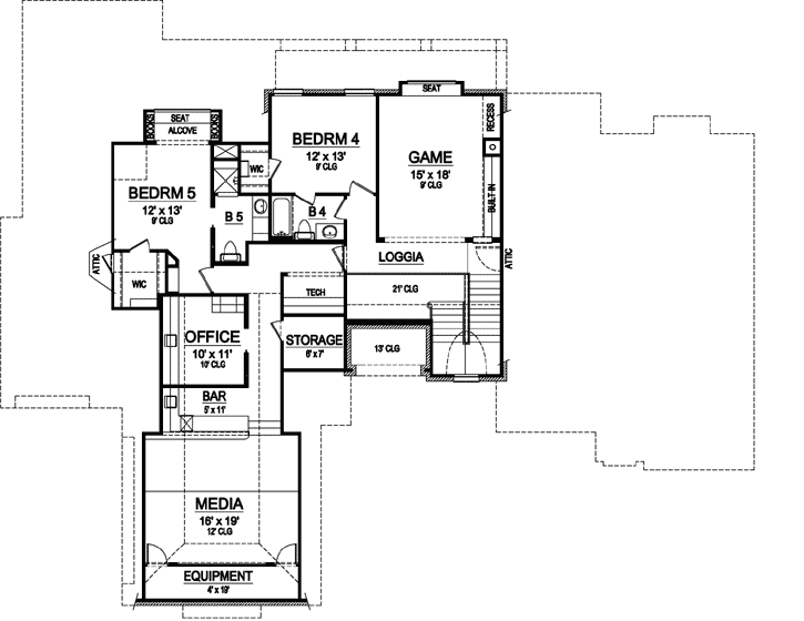
 Upper/Second Floor 
Upper/Second Floor Plan:63-351
 

Monster House Plans Logo
Open the door to your dream house! (800)977-5267

Call Monster House Plans to learn more about buying and
customizing house plans in our collection. 6am-6pm Pacific Time
MHP title  
 
 
 Rear Elevations 
Rear Elevations Plan:63-351
 

Monster House Plans Logo
Open the door to your dream house! (800)977-5267

Call Monster House Plans to learn more about buying and
customizing house plans in our collection. 6am-6pm Pacific Time
MHP title  
 
 
 Plan Sets 
  5-set   $2620
  This is the basic package that includes what most owner/builders need in paper form.  
 
 
  PDF   (recommended)   $2420
  This is the package you would want to buy if you want your plans right now, want to save the shipping costs, and are willing to have your copies made locally. Changes can also be made with PDF's.  
 
 
  CAD   $3630
  This is the package you would want to buy if you are planning on making substantial modifications to the drawings and want to be able to make as many copies locally as you want.  
 
 
 
 Foundation Options 
  Crawlspace $ 250
  Slab Standard With Plan
 Other Options 
  Right Reading Reverse - The plan is reversed with all text reading correctly. $250
  Extra Sets - Additional sets are available only with the purchase of a construction set (8 copy, or 5 copy). $150
  Additional Build License $500

Monster House Plans Logo
Open the door to your dream house! (800)977-5267

Call Monster House Plans to learn more about buying and
customizing house plans in our collection. 6am-6pm Pacific Time
MHP title  


Refund / Exchange Policy:

Plans printed by MonsterHousePlans.com's designers are refundable within 10 business days of purchase under the following conditions:

Plans are in their sealed, original packaging and have not been opened (to be determined by the firm that shipped the original order). Customer will pay a 20% re-stocking fee plus all shipping charges. Reproducibles, CAD Files & PDF's are not refundable under any circumstances due to copyright issues.

Plans ordered from MonsterHousePlans.com may be exchanged within 30 days of purchase under the following conditions:

Upon designer approval, customer may exchange for a plan within the same designer's collection (plan number to have same prefix). Customer will pay 20- 40% of the amount of the original order for re-stocking, plus the difference in cost if exchanging for a higher priced plan. Customer will also be responsible for all shipping charges. Reproducibles, CAD Files & PDF's are not exchangeable under any circumstances due to copyright issues.


Important Stuff

MonsterHousePlans provides home plans for construction purposes but does not oversee the construction. The plan purchaser is responsible for assuring the plan meets local codes and regulations. It is the responsibility of the plan purchaser to obtain any and all structural analysis, engineering and specifications that may be required in the municipality in which it is to be built. Plan purchaser is to verify all lot conditions and measurements before construction. Purchaser is responsible for additional expenses incurred in order to meet local code and engineering requirements.
Customer understands that the following conditions in your specific area may require additional engineering:
1. Wind / hurricane / tornado
2. Seismic / earthquake
3. Heavy snow
4. Flood potential
5. Soil instability
Customer understands that HVAC, Plumbing & Electrical will not be included in plans (other than location of plumbing fixtures and electrical lights, plugs & switches*).

Purchaser agrees that the use of the plan is for the construction of one house only*, and that the plan or any part of it will not be reproduced by any means without the written consent of the copyright owner.

*Unless otherwise noted.