Monster House Plans Logo
Open the door to your dream house! (800)977-5267

Call Monster House Plans to learn more about buying and
customizing house plans in our collection. 6am-6pm Pacific Time
MHP title  
Plan 63-360 Image
All images are copyrighted by designer. Do not reproduce or publish without permission.
 Plan 63-360 Features 
Lot Characteristics:
Suited for corner lots
Bedrooms & Baths:
Main floor Master
Teen suite/Jack & Jill bath
Kitchen:
Island
Walk-in pantry
Butler's pantry
Eating bar
Nook / breakfast
Interior Features:
Bonus room
Family room
Hobby / rec-room
Main Floor laundry
Formal dining room
Den / office / computer
Unfinished/future space
Exterior Features:
Covered front porch
Covered rear porch
Wrap-around porch
 
Unique Features:
Vaulted/Volume/Dramatic ceilings
 
Garage:
Oversized garage (3+)
Rear garage
Side-entry garage
 Plan 63-360 Detail 
Bedrooms: 3
Full Baths: 3
Half Baths: 1
Levels/Stories: 2
Garage Stalls: 3
Total Sq. Ft.: 3049
Main floor: 2423
Upper floor: 626
Bonus Room: 879
Garage: 835
Porches: 578
Width: 69' 0"
Depth: 92' 0"
Height: 35' 0"
Walls: 2"x4"
Ceiling Height (Main): 9'
Ceiling Height (Upper): 9'
 Short Description 
This luxury Victorian mansion home plan provides authentic Victorian styling, including gables and dramatic turrets trimmed with gingerbread, palladian windows and a covered front porch. Once inside, the elegant two-story foyer opens into the centrally-located family room with a warming fireplace between built-in bookcases. A bar and storage sit off to the side between the two areas. The spacious dining room offers views of the rounded porch through the windows surrounding it, in which to greet the day. Double French doors lead to the pantry, butlery and kitchen for ease in serving dinners to family and guests, while the gourmet kitchen offers an eating bar and plenty of counterspace for any chef. A breakfast room with bayed window is off of the kitchen with access to the elongated patio. The three-car, side-entry garage at the back of the home plan has extra space for a workbench and storage. Entry into the home from the garage through the utility room and powder room is especially useful for washing up prior to entering the home. The luxurious master suite boasts a window seat and lavish bath with his and hers vanities, separate garden tub and shower, and his and hers wardrobes. A two-way fireplace between the master suite and the study affords a cozy warmth to both rooms. Upstairs, two family bedrooms, each with bay windows and private baths, flank the dramatic two-story foyer and loggia. Two bonus room with built-ins complete this luxury Victorian mansion house plan.
 Design Comments 
Total under roof: 5,341 sq. ft.

Monster House Plans Logo
Open the door to your dream house! (800)977-5267

Call Monster House Plans to learn more about buying and
customizing house plans in our collection. 6am-6pm Pacific Time
MHP title  
 
 
 Main Floor 
Main Floor Plan: 63-360
 

Monster House Plans Logo
Open the door to your dream house! (800)977-5267

Call Monster House Plans to learn more about buying and
customizing house plans in our collection. 6am-6pm Pacific Time
MHP title  
 
 
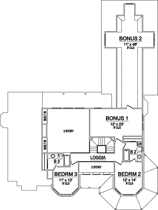
 Upper/Second Floor 
Upper/Second Floor Plan:63-360
 

Monster House Plans Logo
Open the door to your dream house! (800)977-5267

Call Monster House Plans to learn more about buying and
customizing house plans in our collection. 6am-6pm Pacific Time
MHP title  
 
 
 Rear Elevations 
Rear Elevations Plan:63-360
 

Monster House Plans Logo
Open the door to your dream house! (800)977-5267

Call Monster House Plans to learn more about buying and
customizing house plans in our collection. 6am-6pm Pacific Time
MHP title  
 
 
 Plan Sets 
  5-set   $1360
  This is the basic package that includes what most owner/builders need in paper form.  
 
 
  PDF   (recommended)   $1160
  This is the package you would want to buy if you want your plans right now, want to save the shipping costs, and are willing to have your copies made locally. Changes can also be made with PDF's.  
 
 
 
 Foundation Options 
  Crawlspace $ 250
  Slab Standard With Plan
 Other Options 
  Right Reading Reverse - The plan is reversed with all text reading correctly. $250
  Extra Sets - Additional sets are available only with the purchase of a construction set (8 copy, or 5 copy). $100
  Additional Build License $500

Monster House Plans Logo
Open the door to your dream house! (800)977-5267

Call Monster House Plans to learn more about buying and
customizing house plans in our collection. 6am-6pm Pacific Time
MHP title  


Refund / Exchange Policy:

Plans printed by MonsterHousePlans.com's designers are refundable within 10 business days of purchase under the following conditions:

Plans are in their sealed, original packaging and have not been opened (to be determined by the firm that shipped the original order). Customer will pay a 20% re-stocking fee plus all shipping charges. Reproducibles, CAD Files & PDF's are not refundable under any circumstances due to copyright issues.

Plans ordered from MonsterHousePlans.com may be exchanged within 30 days of purchase under the following conditions:

Upon designer approval, customer may exchange for a plan within the same designer's collection (plan number to have same prefix). Customer will pay 20- 40% of the amount of the original order for re-stocking, plus the difference in cost if exchanging for a higher priced plan. Customer will also be responsible for all shipping charges. Reproducibles, CAD Files & PDF's are not exchangeable under any circumstances due to copyright issues.


Important Stuff

MonsterHousePlans provides home plans for construction purposes but does not oversee the construction. The plan purchaser is responsible for assuring the plan meets local codes and regulations. It is the responsibility of the plan purchaser to obtain any and all structural analysis, engineering and specifications that may be required in the municipality in which it is to be built. Plan purchaser is to verify all lot conditions and measurements before construction. Purchaser is responsible for additional expenses incurred in order to meet local code and engineering requirements.
Customer understands that the following conditions in your specific area may require additional engineering:
1. Wind / hurricane / tornado
2. Seismic / earthquake
3. Heavy snow
4. Flood potential
5. Soil instability
Customer understands that HVAC, Plumbing & Electrical will not be included in plans (other than location of plumbing fixtures and electrical lights, plugs & switches*).

Purchaser agrees that the use of the plan is for the construction of one house only*, and that the plan or any part of it will not be reproduced by any means without the written consent of the copyright owner.

*Unless otherwise noted.