Monster House Plans Logo
Open the door to your dream house! (800)977-5267

Call Monster House Plans to learn more about buying and
customizing house plans in our collection. 6am-6pm Pacific Time
MHP title  
Plan 63-486 Image
All images are copyrighted by designer. Do not reproduce or publish without permission.
 Plan 63-486 Features 
Lot Characteristics:
Suited for a back view
Suited for a down-sloping lot
Bedrooms & Baths:
Main floor Master
Kitchen:
Island
Walk-in pantry
Eating bar
Nook / breakfast
Interior Features:
Family room
Hobby / rec-room
Main Floor laundry
Media room
Loft / balcony
Mud room
Formal dining room
Formal living room
Den / office / computer
Exterior Features:
Covered front porch
Covered rear porch
 
Unique Features:
Grand Entry
Elevator
Circular / dual staircases
Vaulted/Volume/Dramatic ceilings
 
Garage:
Oversized garage (3+)
Side-entry garage
 Plan 63-486 Detail 
Bedrooms: 3
Full Baths: 5
Levels/Stories: 2
Garage Stalls: 3
Total Sq. Ft.: 5910
Main floor: 3871
Upper floor: 791
Lower Floor: 1248
Garage: 836
Porches: 464
Width: 103' 0"
Depth: 100' 0"
Height: 45' 0"
Walls:
Ceiling Height (Main): 12'
Ceiling Height (Upper): 9'
 Short Description 
This elegant luxury Chateau will make you feel as if you were in a villa in South of France. There is a substantial terrace around the Chateau which is perfect for dining. Large pillars and arches decorate the front entrance through the double doors that you enter into the grand foyer. The openness of the home is immediately felt by the large decorative pillars that act as a divider between the luxurious large lounge and living room and the spiral staircase and formal dining room all flanking the grand foyer. The living room and family room share an open fireplace. The luxurious master suite boasts a warming fireplace, two large wardrobes and exercise room, and a luxurious master bath with a step up garden tub, perfect for soaking, a separate shower, and access to the outdoor veranda. The dining room has double French doors that lead out onto the large balcony with decorative pillars and spiral staircase that go down to the lower level. Adjacent to the dining room is the gourmet kitchen with its free standing center Island, plenty of built-ins and countertops for any chef, two dishwashers, a butlery, and pantry, making ease in serving guest and family dinners. The breakfast room also has access to the veranda. The quiet study in the front of the home has a bath and closet and could also be used as a guest room. A utility room and a three courtyard entry garage complete this level of this luxurious chateau house plan. Upstairs a loft and media room each have access to the outdoor balcony. The media room has a wet bar and shares space with a bathroom and the elevator that goes from the second floor to the lower level. The amazing spiral staircase will also take you from the second floor to the lower level of this floor plan. In the lower level of this chateau floor plan is the game room, flanked by two family bedrooms, each with full baths and large walking closets. There are several doors onto the outdoor patio and a bar sits at the bottom of the spiral staircase. You will love this French style luxury Chateau house plan.

Monster House Plans Logo
Open the door to your dream house! (800)977-5267

Call Monster House Plans to learn more about buying and
customizing house plans in our collection. 6am-6pm Pacific Time
MHP title  
 
 
 Main Floor 
Main Floor Plan: 63-486
 

Monster House Plans Logo
Open the door to your dream house! (800)977-5267

Call Monster House Plans to learn more about buying and
customizing house plans in our collection. 6am-6pm Pacific Time
MHP title  
 
 
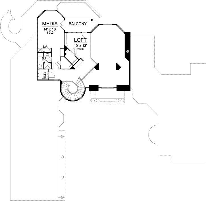
 Upper/Second Floor 
Upper/Second Floor Plan:63-486
 

Monster House Plans Logo
Open the door to your dream house! (800)977-5267

Call Monster House Plans to learn more about buying and
customizing house plans in our collection. 6am-6pm Pacific Time
MHP title  
 
 
 Lower Floor 
Lower Floor Plan:63-486
 

Monster House Plans Logo
Open the door to your dream house! (800)977-5267

Call Monster House Plans to learn more about buying and
customizing house plans in our collection. 6am-6pm Pacific Time
MHP title  
 
 
 Rear Elevations 
Rear Elevations Plan:63-486
 

Monster House Plans Logo
Open the door to your dream house! (800)977-5267

Call Monster House Plans to learn more about buying and
customizing house plans in our collection. 6am-6pm Pacific Time
MHP title  
 
 
 Plan Sets 
  5-set   $2620
  This is the basic package that includes what most owner/builders need in paper form.  
 
 
  PDF   (recommended)   $2420
  This is the package you would want to buy if you want your plans right now, want to save the shipping costs, and are willing to have your copies made locally. Changes can also be made with PDF's.  
 
 
  CAD   $3630
  This is the package you would want to buy if you are planning on making substantial modifications to the drawings and want to be able to make as many copies locally as you want.  
 
 
 
 Foundation Options 
  Walk-out basement Standard With Plan
 Other Options 
  Right Reading Reverse - The plan is reversed with all text reading correctly. $250
  Extra Sets - Additional sets are available only with the purchase of a construction set (8 copy, or 5 copy). $100
  Additional Build License $500

Monster House Plans Logo
Open the door to your dream house! (800)977-5267

Call Monster House Plans to learn more about buying and
customizing house plans in our collection. 6am-6pm Pacific Time
MHP title  


Refund / Exchange Policy:

Plans printed by MonsterHousePlans.com's designers are refundable within 10 business days of purchase under the following conditions:

Plans are in their sealed, original packaging and have not been opened (to be determined by the firm that shipped the original order). Customer will pay a 20% re-stocking fee plus all shipping charges. Reproducibles, CAD Files & PDF's are not refundable under any circumstances due to copyright issues.

Plans ordered from MonsterHousePlans.com may be exchanged within 30 days of purchase under the following conditions:

Upon designer approval, customer may exchange for a plan within the same designer's collection (plan number to have same prefix). Customer will pay 20- 40% of the amount of the original order for re-stocking, plus the difference in cost if exchanging for a higher priced plan. Customer will also be responsible for all shipping charges. Reproducibles, CAD Files & PDF's are not exchangeable under any circumstances due to copyright issues.


Important Stuff

MonsterHousePlans provides home plans for construction purposes but does not oversee the construction. The plan purchaser is responsible for assuring the plan meets local codes and regulations. It is the responsibility of the plan purchaser to obtain any and all structural analysis, engineering and specifications that may be required in the municipality in which it is to be built. Plan purchaser is to verify all lot conditions and measurements before construction. Purchaser is responsible for additional expenses incurred in order to meet local code and engineering requirements.
Customer understands that the following conditions in your specific area may require additional engineering:
1. Wind / hurricane / tornado
2. Seismic / earthquake
3. Heavy snow
4. Flood potential
5. Soil instability
Customer understands that HVAC, Plumbing & Electrical will not be included in plans (other than location of plumbing fixtures and electrical lights, plugs & switches*).

Purchaser agrees that the use of the plan is for the construction of one house only*, and that the plan or any part of it will not be reproduced by any means without the written consent of the copyright owner.

*Unless otherwise noted.