Monster House Plans Logo
Open the door to your dream house! (800)977-5267

Call Monster House Plans to learn more about buying and
customizing house plans in our collection. 6am-6pm Pacific Time
MHP title  
Plan 7-388 Image
All images are copyrighted by designer. Do not reproduce or publish without permission.
 Plan 7-388 Features 
Lot Characteristics:
Suited for a back view
Bedrooms & Baths:
Split bedrooms
Kitchen:
Island
Eating bar
Interior Features:
Great room
Open concept floor plan
No formal living/dining
Exterior Features:
Covered rear porch
Screened porch/sunroom
 
Garage:
Oversized garage (3+)
 Plan 7-388 Detail 
Bedrooms: 4
Full Baths: 2
Half Baths: 1
Levels/Stories: 2
Garage Stalls: 2
Total Sq. Ft.: 1999
Main floor: 1028
Upper floor: 971
Garage: 446
Width: 50' 0"
Depth: 37' 0"
Height: 28' 8"
Roof Pitch (primary): 8:12
Roof Pitch (secondary): 12:12
Walls: 2"x6"
Ceiling Height (Main): 8'
Ceiling Height (Upper): 8'
 Short Description 
This traditional two-story home features four-bedrooms and plenty of room for your family. The spacious great room has a ten-foot ceiling which creates a sense of openness and space this room also has a fireplace. The island kitchen nook and laundry room are located towards the back of the house perfect for the watching the kids play in the yard while still getting some work done. Upstairs you will find a large master bedroom with an enormous walk-in closet and a luxurious master bath. Three additional bedrooms share a full bath with a double vanity.

Monster House Plans Logo
Open the door to your dream house! (800)977-5267

Call Monster House Plans to learn more about buying and
customizing house plans in our collection. 6am-6pm Pacific Time
MHP title  
 
 
 Main Floor 
Main Floor Plan: 7-388
 

Monster House Plans Logo
Open the door to your dream house! (800)977-5267

Call Monster House Plans to learn more about buying and
customizing house plans in our collection. 6am-6pm Pacific Time
MHP title  
 
 
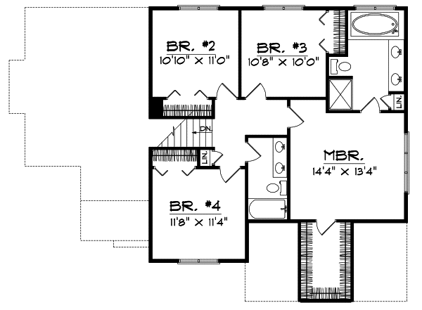
 Upper/Second Floor 
Upper/Second Floor Plan:7-388
 

Monster House Plans Logo
Open the door to your dream house! (800)977-5267

Call Monster House Plans to learn more about buying and
customizing house plans in our collection. 6am-6pm Pacific Time
MHP title  
 
 
 Rear Elevations 
Rear Elevations Plan:7-388
 

Monster House Plans Logo
Open the door to your dream house! (800)977-5267

Call Monster House Plans to learn more about buying and
customizing house plans in our collection. 6am-6pm Pacific Time
MHP title  
 
 
 Plan Sets 
  5-set   $1006
  This is the basic package that includes what most owner/builders need in paper form.  
 
 
  8-set   $1060
  This is the basic package that includes what most owner/builders need in paper form.  
 
 
  PDF   (recommended)   $1257
  This is the package you would want to buy if you want your plans right now, want to save the shipping costs, and are willing to have your copies made locally. Changes can also be made with PDF's.  
 
 
  CAD   $1999
  This is the package you would want to buy if you are planning on making substantial modifications to the drawings and want to be able to make as many copies locally as you want.  
 
 
 
 Foundation Options 
  Basement Standard With Plan
  Crawlspace $ 395
  Slab $ 395
 Other Options 
  Right Reading Reverse - The plan is reversed with all text reading correctly. $395
  Extra Sets - Additional sets are available only with the purchase of a construction set (8 copy, or 5 copy). $80
  Additional Build License $350

Monster House Plans Logo
Open the door to your dream house! (800)977-5267

Call Monster House Plans to learn more about buying and
customizing house plans in our collection. 6am-6pm Pacific Time
MHP title  


Refund / Exchange Policy:

Plans printed by MonsterHousePlans.com's designers are refundable within 10 business days of purchase under the following conditions:

Plans are in their sealed, original packaging and have not been opened (to be determined by the firm that shipped the original order). Customer will pay a 20% re-stocking fee plus all shipping charges. Reproducibles, CAD Files & PDF's are not refundable under any circumstances due to copyright issues.

Plans ordered from MonsterHousePlans.com may be exchanged within 30 days of purchase under the following conditions:

Upon designer approval, customer may exchange for a plan within the same designer's collection (plan number to have same prefix). Customer will pay 20- 40% of the amount of the original order for re-stocking, plus the difference in cost if exchanging for a higher priced plan. Customer will also be responsible for all shipping charges. Reproducibles, CAD Files & PDF's are not exchangeable under any circumstances due to copyright issues.


Important Stuff

MonsterHousePlans provides home plans for construction purposes but does not oversee the construction. The plan purchaser is responsible for assuring the plan meets local codes and regulations. It is the responsibility of the plan purchaser to obtain any and all structural analysis, engineering and specifications that may be required in the municipality in which it is to be built. Plan purchaser is to verify all lot conditions and measurements before construction. Purchaser is responsible for additional expenses incurred in order to meet local code and engineering requirements.
Customer understands that the following conditions in your specific area may require additional engineering:
1. Wind / hurricane / tornado
2. Seismic / earthquake
3. Heavy snow
4. Flood potential
5. Soil instability
Customer understands that HVAC, Plumbing & Electrical will not be included in plans (other than location of plumbing fixtures and electrical lights, plugs & switches*).

Purchaser agrees that the use of the plan is for the construction of one house only*, and that the plan or any part of it will not be reproduced by any means without the written consent of the copyright owner.

*Unless otherwise noted.