Monster House Plans Logo
Open the door to your dream house! (800)977-5267

Call Monster House Plans to learn more about buying and
customizing house plans in our collection. 6am-6pm Pacific Time
MHP title  
Plan 7-851 Image
All images are copyrighted by designer. Do not reproduce or publish without permission.
 Plan 7-851 Features 
Lot Characteristics:
Suited for a back view
Suited for a narrow lot
Bedrooms & Baths:
Split bedrooms
Kitchen:
Island
Interior Features:
Great room
Open concept floor plan
No formal living/dining
 Plan 7-851 Detail 
Bedrooms: 6
Full Baths: 4
Half Baths: 2
Levels/Stories: Multi-level
Garage Stalls: 4
Total Sq. Ft.: 3334
Main floor: 2442
Lower Floor: 892
Garage: 870
Width: 77' 4"
Depth: 42' 0"
Height: 23' 0"
Roof Pitch (primary): 8:12
Roof Pitch (secondary): 6:12
Walls: 2"x6"
Ceiling Height (Main): 8'
 Short Description 
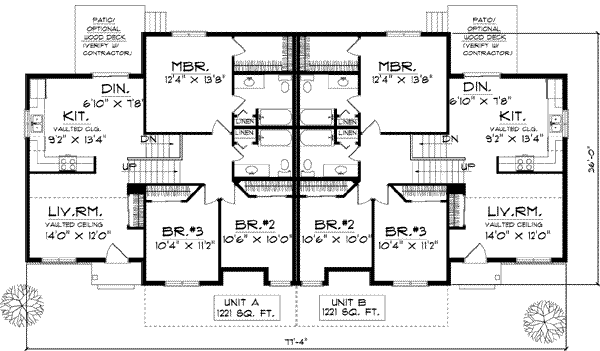
This split-level duplex features two identical units where every inch of livable space has been utilized. Each unit includes three bedrooms including a master suite and a carefully designed living area on the main floor. The master suite is located at the back of each unit and includes a walk-in closet and private bath. The two additional bedrooms are located just off the entry and both share access to the full bath just off the hallway. Downstairs you'll find a large family room a half bath and the laundry room. Access to the two-stall garage is also from the lower level. The rest of the lower level is unfinished for extra storage.
 Design Comments 
1,667 sq. ft. per unit Duplex

Monster House Plans Logo
Open the door to your dream house! (800)977-5267

Call Monster House Plans to learn more about buying and
customizing house plans in our collection. 6am-6pm Pacific Time
MHP title  
 
 
 Main Floor 
Main Floor Plan: 7-851
 

Monster House Plans Logo
Open the door to your dream house! (800)977-5267

Call Monster House Plans to learn more about buying and
customizing house plans in our collection. 6am-6pm Pacific Time
MHP title  
 
 
 Lower Floor 
Lower Floor Plan:7-851
 

Monster House Plans Logo
Open the door to your dream house! (800)977-5267

Call Monster House Plans to learn more about buying and
customizing house plans in our collection. 6am-6pm Pacific Time
MHP title  
 
 
 Rear Elevations 
Rear Elevations Plan:7-851
 

Monster House Plans Logo
Open the door to your dream house! (800)977-5267

Call Monster House Plans to learn more about buying and
customizing house plans in our collection. 6am-6pm Pacific Time
MHP title  
 
 
 Plan Sets 
  5-set   $2167
  This is the basic package that includes what most owner/builders need in paper form.  
 
 
  8-set   $2300
  This is the basic package that includes what most owner/builders need in paper form.  
 
 
  PDF   (recommended)   $3167
  This is the package you would want to buy if you want your plans right now, want to save the shipping costs, and are willing to have your copies made locally. Changes can also be made with PDF's.  
 
 
  CAD   $6167
  This is the package you would want to buy if you are planning on making substantial modifications to the drawings and want to be able to make as many copies locally as you want.  
 
 
 
 Foundation Options 
  Walk-out basement Standard With Plan
  Crawlspace $ 650
  Slab $ 650
 Other Options 
  Right Reading Reverse - The plan is reversed with all text reading correctly. $395
  Extra Sets - Additional sets are available only with the purchase of a construction set (8 copy, or 5 copy). $80
  Additional Build License $500

Monster House Plans Logo
Open the door to your dream house! (800)977-5267

Call Monster House Plans to learn more about buying and
customizing house plans in our collection. 6am-6pm Pacific Time
MHP title  


Refund / Exchange Policy:

Plans printed by MonsterHousePlans.com's designers are refundable within 10 business days of purchase under the following conditions:

Plans are in their sealed, original packaging and have not been opened (to be determined by the firm that shipped the original order). Customer will pay a 20% re-stocking fee plus all shipping charges. Reproducibles, CAD Files & PDF's are not refundable under any circumstances due to copyright issues.

Plans ordered from MonsterHousePlans.com may be exchanged within 30 days of purchase under the following conditions:

Upon designer approval, customer may exchange for a plan within the same designer's collection (plan number to have same prefix). Customer will pay 20- 40% of the amount of the original order for re-stocking, plus the difference in cost if exchanging for a higher priced plan. Customer will also be responsible for all shipping charges. Reproducibles, CAD Files & PDF's are not exchangeable under any circumstances due to copyright issues.


Important Stuff

MonsterHousePlans provides home plans for construction purposes but does not oversee the construction. The plan purchaser is responsible for assuring the plan meets local codes and regulations. It is the responsibility of the plan purchaser to obtain any and all structural analysis, engineering and specifications that may be required in the municipality in which it is to be built. Plan purchaser is to verify all lot conditions and measurements before construction. Purchaser is responsible for additional expenses incurred in order to meet local code and engineering requirements.
Customer understands that the following conditions in your specific area may require additional engineering:
1. Wind / hurricane / tornado
2. Seismic / earthquake
3. Heavy snow
4. Flood potential
5. Soil instability
Customer understands that HVAC, Plumbing & Electrical will not be included in plans (other than location of plumbing fixtures and electrical lights, plugs & switches*).

Purchaser agrees that the use of the plan is for the construction of one house only*, and that the plan or any part of it will not be reproduced by any means without the written consent of the copyright owner.

*Unless otherwise noted.