Monster House Plans Logo
Open the door to your dream house! (800)977-5267

Call Monster House Plans to learn more about buying and
customizing house plans in our collection. 6am-6pm Pacific Time
MHP title  
Plan 7-852 Image
All images are copyrighted by designer. Do not reproduce or publish without permission.
 Plan 7-852 Features 
Lot Characteristics:
Suited for a down-sloping lot
Suited for a narrow lot
Interior Features:
Family room
No formal living/dining
Unique Features:
Vaulted/Volume/Dramatic ceilings
 
 Plan 7-852 Detail 
Bedrooms: 6
Full Baths: 4
Levels/Stories: 1
Garage Stalls: 4
Total Sq. Ft.: 3204
Main floor: 3204
Garage: 896
Width: 80' 0"
Depth: 60' 0"
Height: 23' 0"
Roof Pitch (primary): 8:12
Roof Pitch (secondary): 7:12
Walls: 2"x6"
Ceiling Height (Main): 9'
 Short Description 
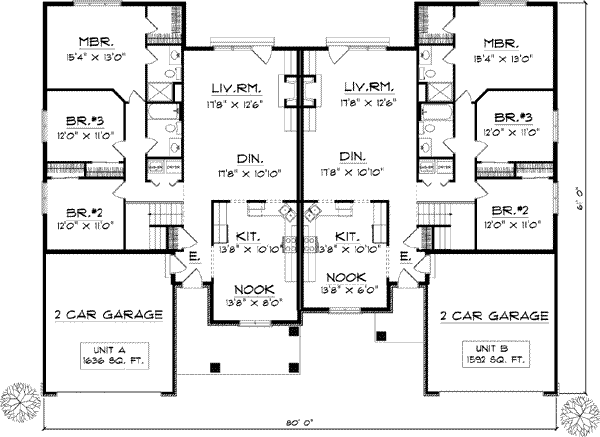
Unit A of this duplex is slightly larger than its partner but both have all of the same amenities. Traditional in style this plan was designed to be affordable to build without sacrificing any curb appeal. The kitchen and nook area is located just off the entry with the formal dining and living room located just behind. A fireplace flanked by built-in cabinets and large French doors out the back both make the living room the primary living area for these homes. The master suite includes a walk-in closet and a private bath while the other two bedrooms share the main bath just off the hall. Finally a two-stall garage makes these units attractive to many.
 Design Comments 
Unit A - 1,616 sq. ft. Unit B - 1,588 sq. ft.

Monster House Plans Logo
Open the door to your dream house! (800)977-5267

Call Monster House Plans to learn more about buying and
customizing house plans in our collection. 6am-6pm Pacific Time
MHP title  
 
 
 Main Floor 
Main Floor Plan: 7-852
 

Monster House Plans Logo
Open the door to your dream house! (800)977-5267

Call Monster House Plans to learn more about buying and
customizing house plans in our collection. 6am-6pm Pacific Time
MHP title  
 
 
 Rear Elevations 
Rear Elevations Plan:7-852
 

Monster House Plans Logo
Open the door to your dream house! (800)977-5267

Call Monster House Plans to learn more about buying and
customizing house plans in our collection. 6am-6pm Pacific Time
MHP title  
 
 
 Plan Sets 
  5-set   $2082
  This is the basic package that includes what most owner/builders need in paper form.  
 
 
  8-set   $2210
  This is the basic package that includes what most owner/builders need in paper form.  
 
 
  PDF   (recommended)   $3043
  This is the package you would want to buy if you want your plans right now, want to save the shipping costs, and are willing to have your copies made locally. Changes can also be made with PDF's.  
 
 
  CAD   $5927
  This is the package you would want to buy if you are planning on making substantial modifications to the drawings and want to be able to make as many copies locally as you want.  
 
 
 
 Foundation Options 
  Basement Standard With Plan
  Crawlspace $ 650
  Slab $ 650
 Other Options 
  Right Reading Reverse - The plan is reversed with all text reading correctly. $395
  Extra Sets - Additional sets are available only with the purchase of a construction set (8 copy, or 5 copy). $80
  Additional Build License $500

Monster House Plans Logo
Open the door to your dream house! (800)977-5267

Call Monster House Plans to learn more about buying and
customizing house plans in our collection. 6am-6pm Pacific Time
MHP title  


Refund / Exchange Policy:

Plans printed by MonsterHousePlans.com's designers are refundable within 10 business days of purchase under the following conditions:

Plans are in their sealed, original packaging and have not been opened (to be determined by the firm that shipped the original order). Customer will pay a 20% re-stocking fee plus all shipping charges. Reproducibles, CAD Files & PDF's are not refundable under any circumstances due to copyright issues.

Plans ordered from MonsterHousePlans.com may be exchanged within 30 days of purchase under the following conditions:

Upon designer approval, customer may exchange for a plan within the same designer's collection (plan number to have same prefix). Customer will pay 20- 40% of the amount of the original order for re-stocking, plus the difference in cost if exchanging for a higher priced plan. Customer will also be responsible for all shipping charges. Reproducibles, CAD Files & PDF's are not exchangeable under any circumstances due to copyright issues.


Important Stuff

MonsterHousePlans provides home plans for construction purposes but does not oversee the construction. The plan purchaser is responsible for assuring the plan meets local codes and regulations. It is the responsibility of the plan purchaser to obtain any and all structural analysis, engineering and specifications that may be required in the municipality in which it is to be built. Plan purchaser is to verify all lot conditions and measurements before construction. Purchaser is responsible for additional expenses incurred in order to meet local code and engineering requirements.
Customer understands that the following conditions in your specific area may require additional engineering:
1. Wind / hurricane / tornado
2. Seismic / earthquake
3. Heavy snow
4. Flood potential
5. Soil instability
Customer understands that HVAC, Plumbing & Electrical will not be included in plans (other than location of plumbing fixtures and electrical lights, plugs & switches*).

Purchaser agrees that the use of the plan is for the construction of one house only*, and that the plan or any part of it will not be reproduced by any means without the written consent of the copyright owner.

*Unless otherwise noted.