Monster House Plans Logo
Open the door to your dream house! (800)977-5267

Call Monster House Plans to learn more about buying and
customizing house plans in our collection. 6am-6pm Pacific Time
MHP title  
Plan 77-327 Image
All images are copyrighted by designer. Do not reproduce or publish without permission.
 Plan 77-327 Features 
Lot Characteristics:
Suited for corner lots
Suited for a back view
Suited for a side-sloping lot
Bedrooms & Baths:
Main floor Master
Teen suite/Jack & Jill bath
Kitchen:
Island
Walk-in pantry
Eating bar
Hearth room
Interior Features:
Great room
Main Floor laundry
Formal dining room
Den / office / computer
Unfinished/future space
Unique Features:
Vaulted/Volume/Dramatic ceilings
 
Garage:
Oversized garage (3+)
Side-entry garage
 Plan 77-327 Detail 
Bedrooms: 4
Full Baths: 4
Half Baths: 2
Levels/Stories: 2
Garage Stalls: 5
Total Sq. Ft.: 6088
Main floor: 4294
Upper floor: 1794
Basement: 4084
Garage: 1320
Porches: 96
Width: 84' 8"
Depth: 125' 3"
Height: 34' 0"
Roof Pitch (primary): 8:12
Roof Pitch (secondary): 14:12
Walls: 2"x4"
Ceiling Height (Main): 10'
Ceiling Height (Upper): 9'
 Short Description 
Old English Luxury6088 total square feet of living areaSpecial featuresThe immense great room has a two-story stone fireplace flanking bookshelves and window wall for plenty of natural lightA 9' island with seating octagonal breakfast area covered porch and vaulted hearth room with fireplace are some of the amenities of the spacious kitchenThe stunning master bedroom boasts a coffered ceiling bay window and generous bath with sauna whirlpool tub and two large walk-in closetsThe garage has a large storage room adjacent office with private entrance half bath and stylish patioA dramatic balcony overlooking the great room and private staircase to the kitchen are some of the features of the second floor including three bedrooms each with their own bath and walk-in closet4 bedrooms 4 full baths 2 half baths 5-car side entry garageBasement foundation4294 square feet on the first floor and 1794 square feet on the second floor

Monster House Plans Logo
Open the door to your dream house! (800)977-5267

Call Monster House Plans to learn more about buying and
customizing house plans in our collection. 6am-6pm Pacific Time
MHP title  
 
 
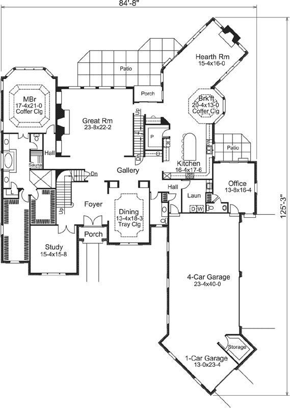
 Main Floor 
Main Floor Plan: 77-327
 

Monster House Plans Logo
Open the door to your dream house! (800)977-5267

Call Monster House Plans to learn more about buying and
customizing house plans in our collection. 6am-6pm Pacific Time
MHP title  
 
 
 Upper/Second Floor 
Upper/Second Floor Plan:77-327
 

Monster House Plans Logo
Open the door to your dream house! (800)977-5267

Call Monster House Plans to learn more about buying and
customizing house plans in our collection. 6am-6pm Pacific Time
MHP title  
 
 
 Rear Elevations 
Rear Elevations Plan:77-327
 

Monster House Plans Logo
Open the door to your dream house! (800)977-5267

Call Monster House Plans to learn more about buying and
customizing house plans in our collection. 6am-6pm Pacific Time
MHP title  
 
 
 Plan Sets 
  5-set   $1549
  This is the basic package that includes what most owner/builders need in paper form.  
 
 
  PDF   (recommended)   $1549
  This is the package you would want to buy if you want your plans right now, want to save the shipping costs, and are willing to have your copies made locally. Changes can also be made with PDF's.  
 
 
  Unlimited Build Construction - PDF   $2299
  This is the package you would want to by if you are a professional builder wanting to build multiple house from this design. this comes with the PDF file AND the unlimited build license.  
 
 
  CAD   $2549
  This is the package you would want to buy if you are planning on making substantial modifications to the drawings and want to be able to make as many copies locally as you want.  
 
 
  Unlimited Build Construction - CAD   $3299
  This is the package you would want to buy if you are a professional builder wanting to build multiple houses from this design. This comes with the CAD file AND the unlimited build license  
 
 
 
 Foundation Options 
  Daylight basement Standard With Plan
 Other Options 
  Right Reading Reverse - The plan is reversed with all text reading correctly. $150
  Extra Sets - Additional sets are available only with the purchase of a construction set (8 copy, or 5 copy). $50
  Material List $125
  Convert to 2" x 6" $150

Monster House Plans Logo
Open the door to your dream house! (800)977-5267

Call Monster House Plans to learn more about buying and
customizing house plans in our collection. 6am-6pm Pacific Time
MHP title  


Refund / Exchange Policy:

Plans printed by MonsterHousePlans.com's designers are refundable within 10 business days of purchase under the following conditions:

Plans are in their sealed, original packaging and have not been opened (to be determined by the firm that shipped the original order). Customer will pay a 20% re-stocking fee plus all shipping charges. Reproducibles, CAD Files & PDF's are not refundable under any circumstances due to copyright issues.

Plans ordered from MonsterHousePlans.com may be exchanged within 30 days of purchase under the following conditions:

Upon designer approval, customer may exchange for a plan within the same designer's collection (plan number to have same prefix). Customer will pay 20- 40% of the amount of the original order for re-stocking, plus the difference in cost if exchanging for a higher priced plan. Customer will also be responsible for all shipping charges. Reproducibles, CAD Files & PDF's are not exchangeable under any circumstances due to copyright issues.


Important Stuff

MonsterHousePlans provides home plans for construction purposes but does not oversee the construction. The plan purchaser is responsible for assuring the plan meets local codes and regulations. It is the responsibility of the plan purchaser to obtain any and all structural analysis, engineering and specifications that may be required in the municipality in which it is to be built. Plan purchaser is to verify all lot conditions and measurements before construction. Purchaser is responsible for additional expenses incurred in order to meet local code and engineering requirements.
Customer understands that the following conditions in your specific area may require additional engineering:
1. Wind / hurricane / tornado
2. Seismic / earthquake
3. Heavy snow
4. Flood potential
5. Soil instability
Customer understands that HVAC, Plumbing & Electrical will not be included in plans (other than location of plumbing fixtures and electrical lights, plugs & switches*).

Purchaser agrees that the use of the plan is for the construction of one house only*, and that the plan or any part of it will not be reproduced by any means without the written consent of the copyright owner.

*Unless otherwise noted.