Traditional House Plan - 6 Bedrooms, 4 Bath, 3050 Sq Ft Plan 12-346

New plans now available on

dreambook-head-logo See all available plans
SHARE ON

All plans are copyrighted by the individual designer.

Photographs may reflect custom changes that were not included in the original design.

6 Bedroom, 4 Bath Traditional House Plan #12-346

Plan Purchase Options

Price: $0

Please uncheck first "Purchase MML without any plan package" under MONSTER MATERIAL LIST

Monster Material List
Optional Add-Ons
guaranted-label.png

Best Price Guarantee

*Payment Plans Now
Available Through

img See if you qualify

Floor Plans

What's included?
  • Main Floor

    Reverse

    Clicking the Reverse button does not mean you are ordering your plan reversed. It is for visualization purposes only. You may reverse the plan by ordering under “Optional Add-ons”.

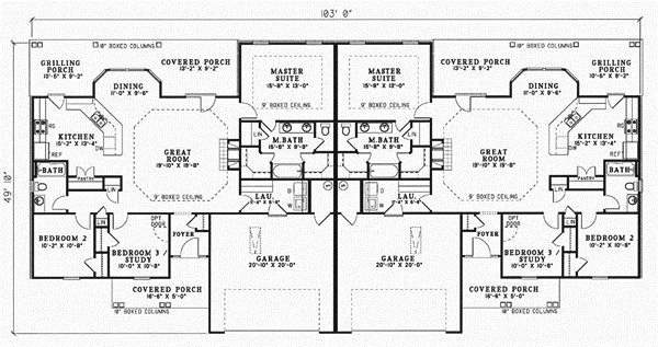
    Main Floor Plan: 12-346

Rear/Alternate Elevations

  • Rear Elevation

    Reverse

    Clicking the Reverse button does not mean you are ordering your plan reversed. It is for visualization purposes only. You may reverse the plan by ordering under “Optional Add-ons”.

    Rear Elevation Plan: 12-346

House Plan Highlights

The ultimate family home times two! This duplex offers the most luxurious family areas, which separates the master suite from the other bedrooms for privacy. The massive great room has a nine foot boxed ceiling, large fireplace, access to the rear-covered porch and opens to a large kitchen and dining area for the ultimate in entertaining options. One of the two front bedrooms will be conveniently suited for a study or home office, for that пїЅwork at homeпїЅ mom or dad. And the best for last пїЅ A master bedroom suite with nine foot boxed ceiling and a master bath with all the amenities.

This floor plan is found in our Traditional house plans section

Full Specs and Features

icon Total Living Area

  • Main floor: 3050
  • Porches: 796
  • Total Finished Sq. Ft.: 3050

icon Beds/Baths

  • Bedrooms: 6
  • Full Baths: 4

icon Garage

  • Garage: 880
  • Garage Stalls: 4

icon Levels

  • 1 story

Dimension

  • Width: 103' 0"
  • Depth: 49' 10"
  • Height: 22' 8"

Roof slope

  • 8:12 (primary)

Walls (exterior)

  • 2"x4"

Ceiling heights

  • 8' (Main)

Foundation Options

  • Basement $299
  • Daylight basement $299
  • Crawlspace Standard With Plan
  • Slab Standard With Plan

How Much Will It Cost To Build?

"Need content here about cost to build est."

Buy My Cost To Build Estimate

Modify This Plan

"Need Content here about modifying your plan"

Customize This Plan

House Plan Features

Suited for a back view Zero lot-line
Split bedrooms
Eating bar
Great room Open concept floor plan No formal living/dining Den / office / computer
Covered front porch Covered rear porch Grilling porch/outdoor kitchen
Vaulted/Volume/Dramatic ceilings

Reviews

How Much Will It Cost To Build?

Wondering what it’ll actually cost to bring your dream home to life? Get a clear, customized estimate based on your chosen plan and location.

Buy My Cost To Build Estimate

Modify This Plan

Need changes to the layout or features? Our team can modify any plan to match your vision.

Customize This Plan

House Plan Features

Suited for a back view Zero lot-line
Split bedrooms
Eating bar
Great room Open concept floor plan No formal living/dining Den / office / computer
Covered front porch Covered rear porch Grilling porch/outdoor kitchen
Vaulted/Volume/Dramatic ceilings

Need Some Quick Tips Or Advice?

We want to help you design the house of your dreams as best as we can. If you can't find the answers you're looking for here, get in touch with our licensed architect or a designer!