Traditional House Plan - 6 Bedrooms, 4 Bath, 3366 Sq Ft Plan 12-329

New plans now available on

dreambook-head-logo See all available plans
SHARE ON

All plans are copyrighted by the individual designer.

Photographs may reflect custom changes that were not included in the original design.

6 Bedroom, 4 Bath Traditional House Plan #12-329

Plan Purchase Options

Price: $0

Please uncheck first "Purchase MML without any plan package" under MONSTER MATERIAL LIST

Monster Material List
Optional Add-Ons
guaranted-label.png

Best Price Guarantee

*Payment Plans Now
Available Through

img See if you qualify

Floor Plans

What's included?
  • Main Floor

    Reverse

    Clicking the Reverse button does not mean you are ordering your plan reversed. It is for visualization purposes only. You may reverse the plan by ordering under “Optional Add-ons”.

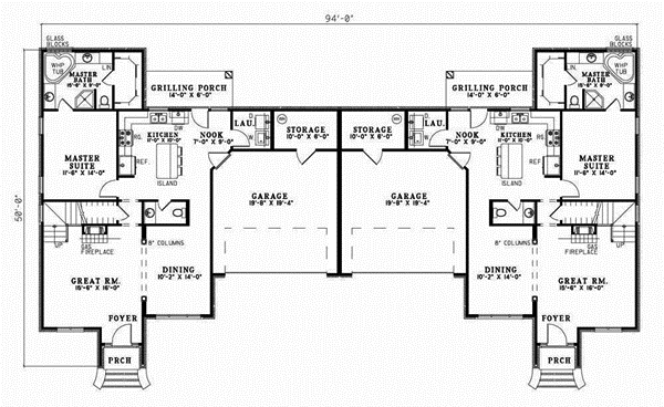
    Main Floor Plan: 12-329
  • Upper/Second Floor

    Reverse

    Clicking the Reverse button does not mean you are ordering your plan reversed. It is for visualization purposes only. You may reverse the plan by ordering under “Optional Add-ons”.

    Upper/Second Floor Plan: 12-329

Rear/Alternate Elevations

  • Rear Elevation

    Reverse

    Clicking the Reverse button does not mean you are ordering your plan reversed. It is for visualization purposes only. You may reverse the plan by ordering under “Optional Add-ons”.

    Rear Elevation Plan: 12-329

House Plan Highlights

This traditional duplex will enchant you as you enter through the covered porch into the spacious great room with gas fireplace. The nine foot ceilings and eight inch wooden columns create a warm ambiance for you and your guests. Spend hours of quality time with loved ones in the convenient kitchen with bar and access to the rear grilling porch. The upper floor with unique ceilings and two bedrooms with full bath is perfect for a children's suite. You'll be able to relax away the day in your private master suite complete with master bath with 'his and her' vanities, whirlpool tub with glass blocks, and large walk-in closet.

This floor plan is found in our Traditional house plans section

Full Specs and Features

icon Total Living Area

  • Main floor: 2308
  • Upper floor: 1058
  • Basement: 1154
  • Bonus: 381
  • Porches: 368
  • Total Finished Sq. Ft.: 3366

icon Beds/Baths

  • Bedrooms: 6
  • Full Baths: 4
  • Half Baths: 2

icon Garage

  • Garage: 760
  • Garage Stalls: 4

icon Levels

  • 2 stories

Dimension

  • Width: 94' 0"
  • Depth: 50' 0"
  • Height: 27' 5"

Roof slope

  • 12:12 (primary)

Walls (exterior)

  • 2"x4"

Ceiling heights

  • 9' (Main)
    8' (Upper)

Foundation Options

  • Basement $299
  • Daylight basement $299
  • Crawlspace Standard With Plan
  • Slab Standard With Plan

How Much Will It Cost To Build?

"Need content here about cost to build est."

Buy My Cost To Build Estimate

Modify This Plan

"Need Content here about modifying your plan"

Customize This Plan

House Plan Features

Zero lot-line
Main floor Master
Island Eating bar Nook / breakfast
Bonus room Great room Main Floor laundry Formal dining room
Covered rear porch Grilling porch/outdoor kitchen
Vaulted/Volume/Dramatic ceilings

Reviews

How Much Will It Cost To Build?

Wondering what it’ll actually cost to bring your dream home to life? Get a clear, customized estimate based on your chosen plan and location.

Buy My Cost To Build Estimate

Modify This Plan

Need changes to the layout or features? Our team can modify any plan to match your vision.

Customize This Plan

House Plan Features

Zero lot-line
Main floor Master
Island Eating bar Nook / breakfast
Bonus room Great room Main Floor laundry Formal dining room
Covered rear porch Grilling porch/outdoor kitchen
Vaulted/Volume/Dramatic ceilings

Need Some Quick Tips Or Advice?

We want to help you design the house of your dreams as best as we can. If you can't find the answers you're looking for here, get in touch with our licensed architect or a designer!