Traditional House Plan - 8 Bedrooms, 6 Bath, 5032 Sq Ft Plan 12-764

New plans now available on

dreambook-head-logo See all available plans
SHARE ON

All plans are copyrighted by the individual designer.

Photographs may reflect custom changes that were not included in the original design.

8 Bedroom, 6 Bath Traditional House Plan #12-764

Plan Purchase Options

Price: $0

Please uncheck first "Purchase MML without any plan package" under MONSTER MATERIAL LIST

Monster Material List
Optional Add-Ons
guaranted-label.png

Best Price Guarantee

*Payment Plans Now
Available Through

img See if you qualify

Floor Plans

What's included?
  • Main Floor

    Reverse

    Clicking the Reverse button does not mean you are ordering your plan reversed. It is for visualization purposes only. You may reverse the plan by ordering under “Optional Add-ons”.

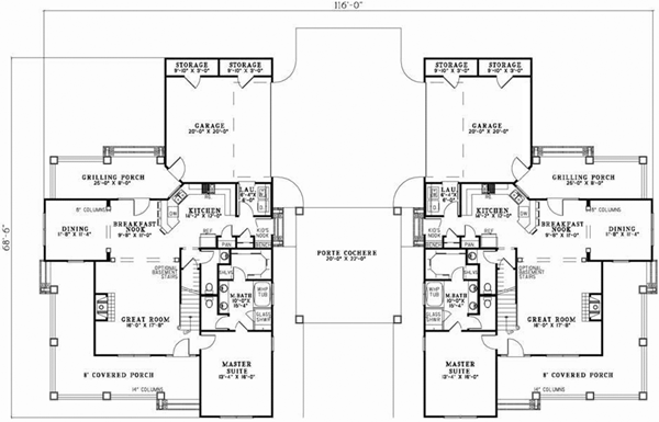
    Main Floor Plan: 12-764
  • Upper/Second Floor

    Reverse

    Clicking the Reverse button does not mean you are ordering your plan reversed. It is for visualization purposes only. You may reverse the plan by ordering under “Optional Add-ons”.

    Upper/Second Floor Plan: 12-764

House Plan Highlights

This spectacular design is an exceptional creation. Two gorgeous homes adjoined by a common porte cochere make for a wonderful shared area for neighbors - add a basketball goal and you have a courtside seat! Each private residence has a front covered-porch with tapered columns atop rock pillars and a rear-porch privately located behind the garage. These well-planned interiors have a large great room with fireplace and a quaint breakfast nook centered between the dining room and spacious kitchen. The master suite is placed on the main-level and includes a private bathroom with all the amenities and a large walk-in closet with shelves. The upper level has four additional bedrooms and two full bathrooms. One bedroom has a private bathroom and large walk-in closet making the perfect set-up mature family member. A convenient computer/study center is located just at the top of the stairs for easy supervision.

This floor plan is found in our Traditional house plans section

Full Specs and Features

icon Total Living Area

  • Main floor: 2720
  • Upper floor: 2312
  • Porches: 600
  • Total Finished Sq. Ft.: 5032

icon Beds/Baths

  • Bedrooms: 8
  • Full Baths: 6
  • Half Baths: 2

icon Garage

  • Garage: 839
  • Garage Stalls: 4

icon Levels

  • 2 stories

Dimension

  • Width: 116' 0"
  • Depth: 68' 6"
  • Height: 34' 10"

Roof slope

  • 10:12 (primary)

Walls (exterior)

  • 2"x4"

Ceiling heights

  • 9' (Main)
    8' (Upper)

Foundation Options

  • Basement $299
  • Daylight basement $299
  • Crawlspace Standard With Plan
  • Slab Standard With Plan

How Much Will It Cost To Build?

"Need content here about cost to build est."

Buy My Cost To Build Estimate

Modify This Plan

"Need Content here about modifying your plan"

Customize This Plan

House Plan Features

Main floor Master Guest suite Teen suite/Jack & Jill bath
Eating bar Nook / breakfast
Great room Main Floor laundry Media room Open concept floor plan Formal dining room
Covered front porch Covered rear porch Wrap-around porch Porte Cochere Grilling porch/outdoor kitchen
Rear garage Side-entry garage

Reviews

How Much Will It Cost To Build?

Wondering what it’ll actually cost to bring your dream home to life? Get a clear, customized estimate based on your chosen plan and location.

Buy My Cost To Build Estimate

Modify This Plan

Need changes to the layout or features? Our team can modify any plan to match your vision.

Customize This Plan

House Plan Features

Main floor Master Guest suite Teen suite/Jack & Jill bath
Eating bar Nook / breakfast
Great room Main Floor laundry Media room Open concept floor plan Formal dining room
Covered front porch Covered rear porch Wrap-around porch Porte Cochere Grilling porch/outdoor kitchen
Rear garage Side-entry garage

Need Some Quick Tips Or Advice?

We want to help you design the house of your dreams as best as we can. If you can't find the answers you're looking for here, get in touch with our licensed architect or a designer!